Button CopyPathCircle CloseCircle Left ArrowArrow Down Icon GreyClosecirclecircleBurger
Image 1
Image 2
Image 3
$359,800

2 Beds

2 Baths

861 FEETSQ

QuickQuoteTM: Not Available

Maple Ridge BC, V2X 2L5

MLS® # R3074529

Property Information:

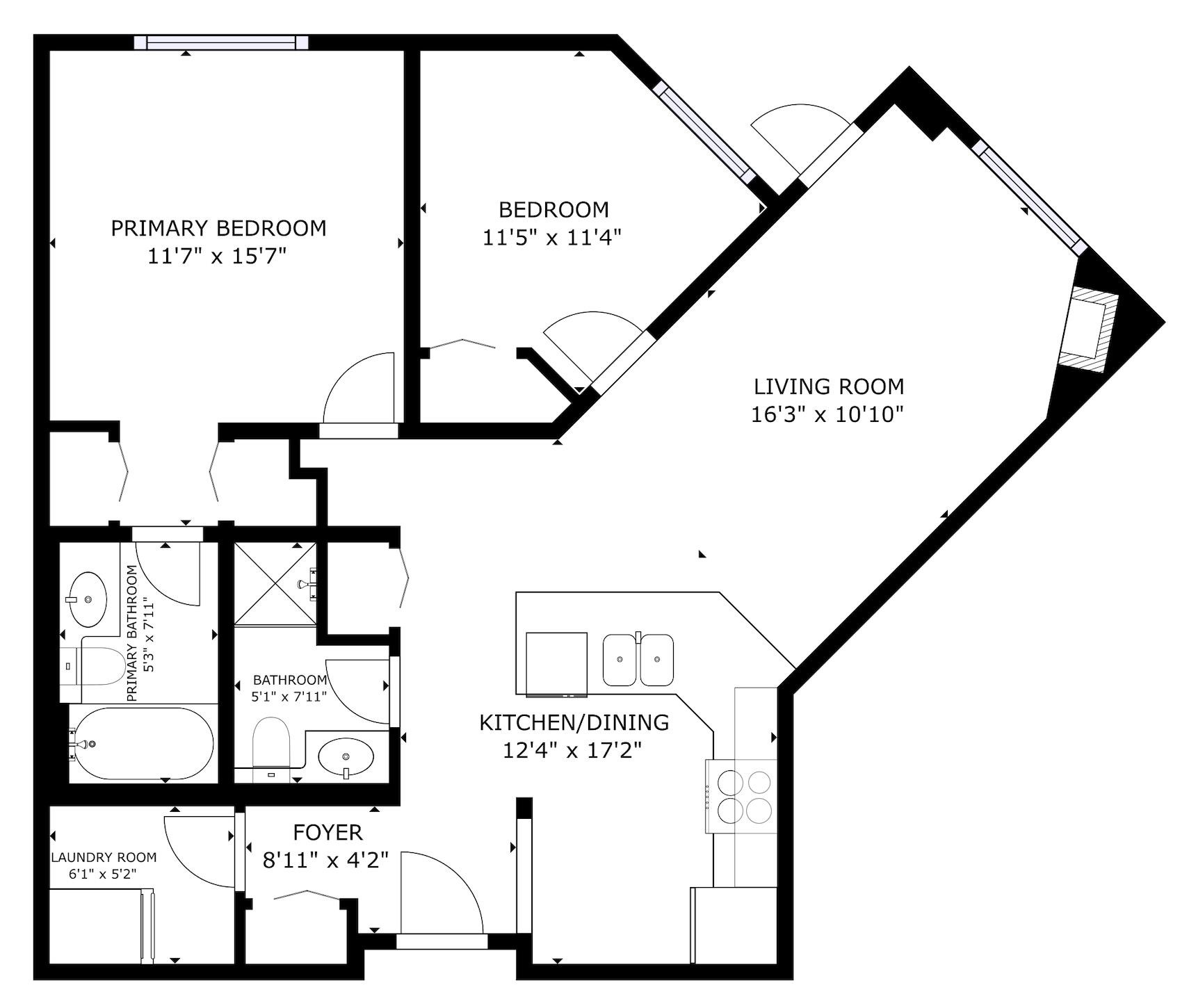
Welcome to Southridge Terrace. This bright corner two bedroom, two bathroom home offers an open layout and one of the largest patios in the building, perfect for relaxing or entertaining. Wide plank laminate flooring runs throughout, with crown moulding and granite countertops that add a finished, timeless feel. The spacious living and dining area flows naturally, making the home feel open and comfortable. The kitchen is well laid out with plenty of counter space, while in suite laundry and secure underground parking add everyday convenience. The building is centrally located, yet surrounded by nature. Golden Ears Provincial Park and Alouette Lake are just minutes away, offering endless outdoor recreation. At the same time, the walkable town centre nearby is filled with shops,

Building Features:

  • Floor Space: 861 Square Feet

Property Features:

  • Bedrooms: 2
  • Bathrooms: 2+0
  • Annual Tax Amount: $2,622
  • Appliances: Washer/Dryer, Dishwasher, Refrigerator
  • Association Amenities: Clubhouse, Caretaker, Trash, Hot Water, Management, Sewer, Snow Removal, Water
  • Basement: None
  • Built in: 1999
  • Condo Fees: $395
  • Exterior Features: Balcony
  • Fireplace Features: Gas
  • Floor Space (approx): 861 Square Feet
  • Heating: Baseboard, Electric
  • Interior Features: Elevator, Storage
  • Laundry Features: In Unit
  • Levels: One
  • Lot Features: Central Location
  • Parking Features: Underground
  • Structure Type: Multi Family, Residential Attached
  • Window Features: Window Coverings
  • No. of Parking Spaces: 1

The data relating to real estate on this web site comes in part from the MLS® Reciprocity program of the Greater Vancouver REALTORS®, the Fraser Valley Real Estate Board or Chilliwack & District Real Estate Board. Real estate listings held by participating real estate firms are marked with the MLS® Reciprocity logo and detailed information about the listing includes the name of the listing agent. This representation is based in whole or part on data generated by the Greater Vancouver REALTORS®, the Fraser Valley Real Estate Board or Chilliwack & District Real Estate Board which assumes no responsibility for its accuracy. The materials contained on this page may not be reproduced without the express written consent of the Greater Vancouver REALTORS®, the Fraser Valley Real Estate Board or Chilliwack & District Real Estate Board.

QuickQuoteTM Powered by RPS

Location of 206-22230 North Avenue, Maple Ridge, BC, V2X 2L5

Demographic Information of 206-22230 North Avenue, Maple Ridge, BC, V2X 2L5

Life Stage

Young Couples

Employment Type

Blue Collar/Primary, Blue Collar/Service Sector

Average Household Income

$87,184.89

Average Number of Children

1.46

Household Population

Household Structure

Age of Population

Education

Education Level

No certificate/diploma/degree

17.17 %

High school certificate or equivalent

38.61 %

Apprenticeship trade certificate/diploma

9.99 %

College/non-university certificate

20.31 %

University certificate (below bachelor)

0.97 %

University Degree

12.96 %

Commuter

Travel To Work

By Car

76.87 %

By Public Transit

10.05 %

By Walking

10.11 %

By Bicycle

0.0 %

By Other Methods

2.97 %

Cultural Diversity

Knowledge of Official Language

Mother Tongue

Building Information

Building Type

Apartments (Low and High Rise)

89.14 %

Houses

10.86 %

Own Vs. Rent