Montréal (Le Sud-Ouest) QC, H3C 0S3
Property Information:
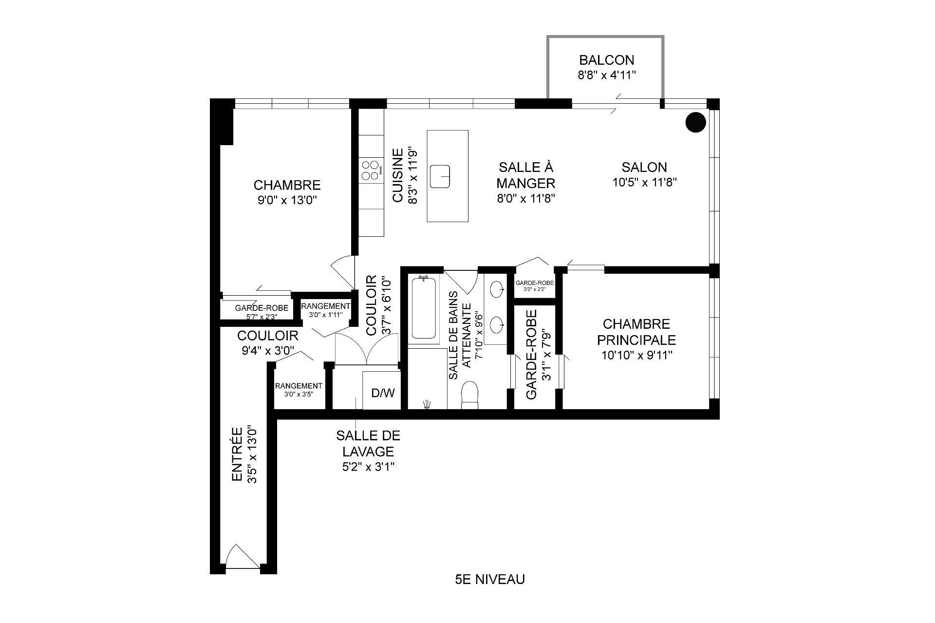
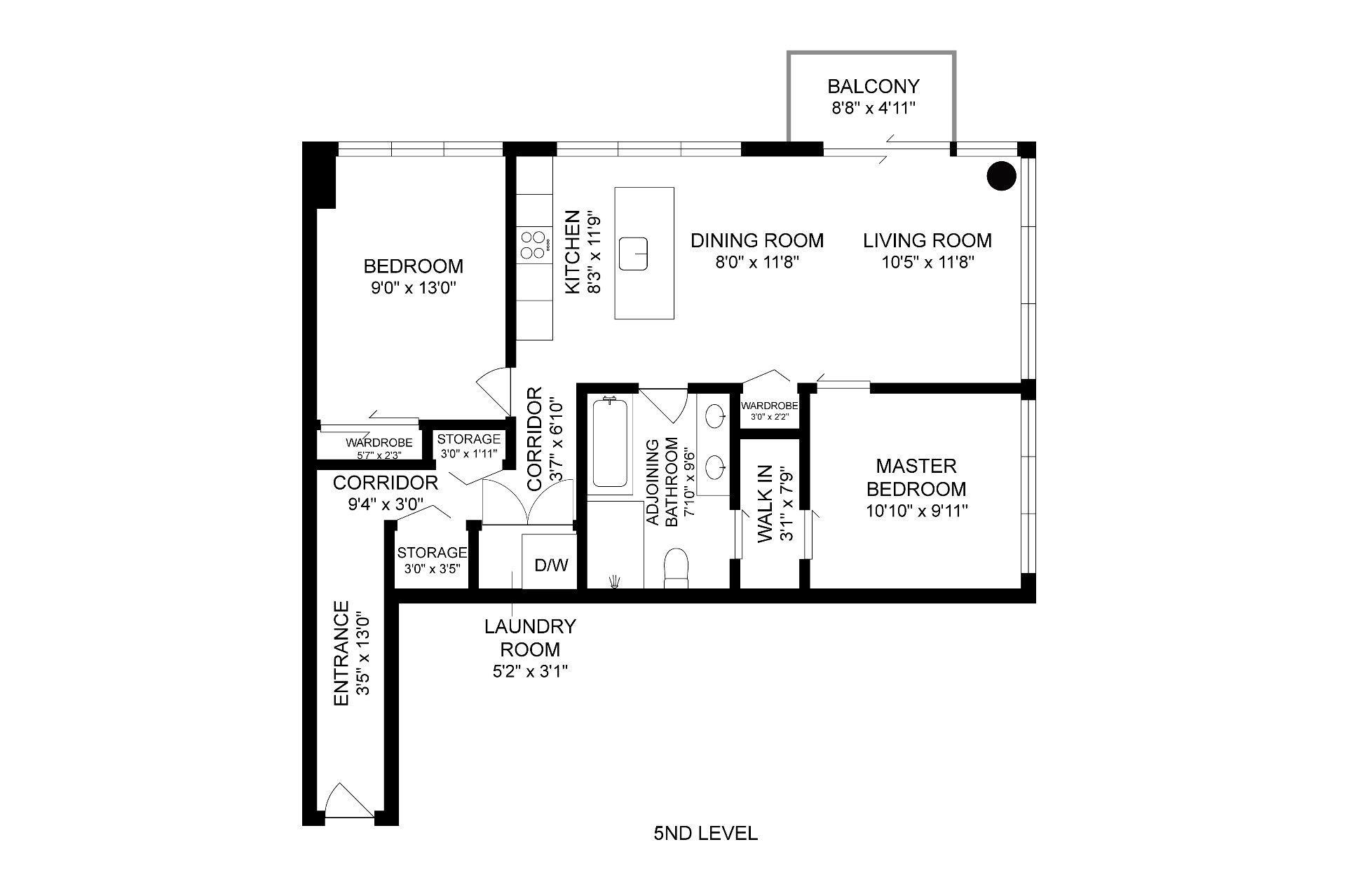
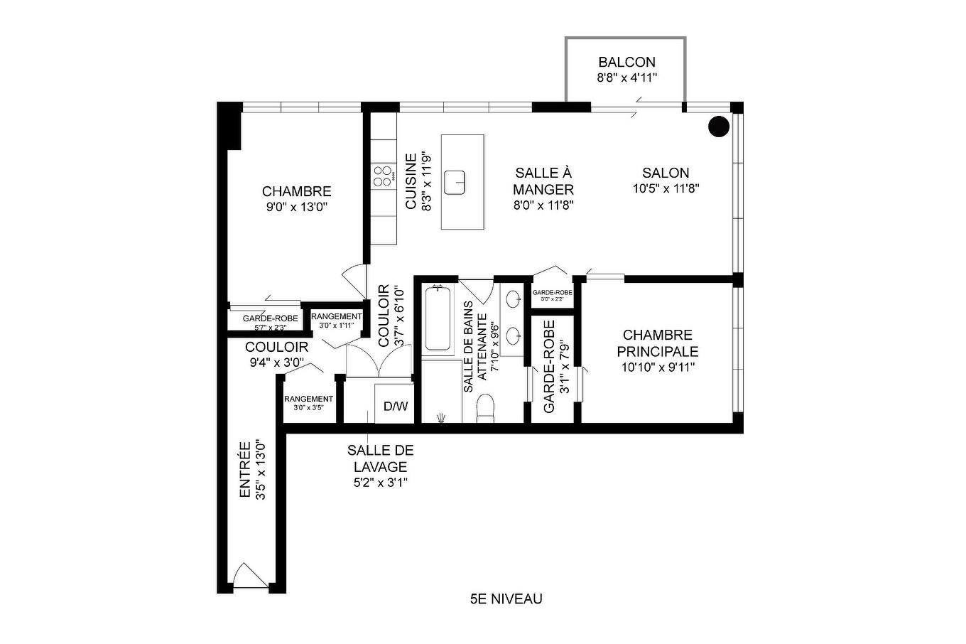
Beautiful corner unit on the 12th floor of W3 in Griffintown, filled with natural light and offering unobstructed city views. Open-concept layout with a spacious living room and contemporary kitchen featuring a quartz island and included appliances. Two bedrooms positioned on opposite sides for added privacy; primary bedroom with walk-in closet and direct access to the bathroom with separate tub and shower. Large balcony. Building amenities include a rooftop terrace, heated pool, lounge, BBQ area and gym. Exceptional location near the Lachine Canal, REM, metro, restaurants and shops.
Section 16 of the Regulation respecting conditions of practice for brokerage operations, the ethics of brokers and advertising provides as follows:
"The licensee who represents a party must inform, as soon as possible, any other party who is not represented of the fact that he must protect and promote the interests of the party he represents while granting fair treatment to the party who is not represented."
In order to make an informed decision, you are hereby informed of the choices available to you, namely :
a) deal directly with the seller's broker and receive fair treatment;
or
b) deal with your own broker, who will ensure that your interests are protected.
If you choose to work with your own broker, it is a recommended that he or she be present during the visit of the property.
Inclusions: Refrigerator, dishwasher, cooktop, oven, washer, dryer, light fixtures, curtains, TV wall mount, wall-mounted AC unit
Exclusions : Television
Building Features:
- Style: Apartment
- Animal types: Pets allowed
- Bathroom: Separate shower
- Building amenity and common areas: Common areas, Elevator, Balcony/terrace, Garbage chute, Fitness room, Outdoor pool, Roof terrace
- Kitchen Cabinets: Melamine
- Pool: Heated
- Property or unit amenity: Private balcony, Central air conditioning, Air exchange system, Intercom
- Proximity: Highway, Daycare centre, Hospital, Metro, Park, Bicycle path, Elementary school, Réseau Express Métropolitain (REM), High school, Commuter train, Public transportation, University
- View: View of the city
- Heating System: Electric baseboard units
- Heating Energy: Electricity
- Water Supply: Municipality
- Sewage System: Municipality
Taxes:
- Municipal Tax: $3,490
- School Tax: $421
- Annual Tax Amount: $3,911
Expenses:
- Condo Fees: $663 Monthly
- Electric: $815
Property Assessemnt:
- Lot Assessment: $69,900
- Building Assessment: $485,900
- Total Assessment: $555,800
Property Features:
- Bedrooms: 2
- Bathrooms: 1
- Built in: 2017
- Floor Space (approx): 846.04 Square Feet
- Zoning: RESI
Rooms:
- Foyer Other level 4.88 m x 1.04 m 16.0 ft x 3.5 ft Flooring: Wood
- Bedroom Other level 3.96 m x 2.74 m 13.0 ft x 9.0 ft Flooring: Wood
- Kitchen Other level 3.58 m x 2.51 m 11.9 ft x 8.3 ft Flooring: Wood
- Dining Other level 3.56 m x 2.44 m 11.8 ft x 8.0 ft Flooring: Wood
- Living Other level 3.56 m x 3.17 m 11.8 ft x 10.5 ft Flooring: Wood
- Primary Bedroom Other level 3.30 m x 3.02 m 10.10 ft x 9.11 ft Flooring: Wood
- Walk-in Closet Other level 2.36 m x 0.94 m 7.9 ft x 3.1 ft Flooring: Wood
- Bathroom Other level 2.90 m x 2.39 m 9.6 ft x 7.10 ft Flooring: Ceramic
- Laundry Other level 1.57 m x 0.94 m 5.2 ft x 3.1 ft Flooring: Wood
Convert Measurement to:
Data provided by: Centris - 600 Ch Du Golf, Ile -Des -Soeurs, Quebec H3E 1A8
All information displayed is believed to be accurate but is not guaranteed and should be independently verified. No warranties or representations are made of any kind. Copyright© 2021 All Rights Reserved.
Market Price Trends
Location of 1209-1165 Rue Wellington, Montréal (Le Sud-Ouest), QC, H3C 0S3
Demographic Information of 1209-1165 Rue Wellington, Montréal (Le Sud-Ouest), QC, H3C 0S3
Life Stage
Young SinglesEmployment Type
White CollarAverage Household Income
$173,468.92Average Number of Children
1.46Household Population
Household Structure
Age of Population
Education
Education Level
No certificate/diploma/degree
3.91 %High school certificate or equivalent
10.76 %Apprenticeship trade certificate/diploma
4.05 %College/non-university certificate
14.55 %University certificate (below bachelor)
5.94 %University Degree
60.79 %Commuter
Travel To Work
By Car
46.38 %By Public Transit
19.54 %By Walking
26.49 %By Bicycle
4.3 %By Other Methods
3.3 %Cultural Diversity
Knowledge of Official Language
Mother Tongue
Building Information
Building Type
Apartments (Low and High Rise)
99.87 %Houses












































