$1,024,900

House For Sale In Glenbrook, Calgary, Alberta

$1,024,900
  • 4

    Bedrooms

  • 4

    Baths

  • 2871.00 Square Feet

    Lot Size

Property Information:

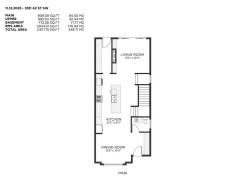
Timeless design, modern comfort, and everyday function come together on a quiet tree-lined street in this stunning new home in GLENBROOK. With expansive windows, warm natural materials, & elevated finishes throughout, it’s crafted for family living in one of Calgary’s most established neighbourhoods. Step in from the covered entry to a bright foyer with sight lines across the open main floor, where light oak hardwood carries seamlessly through the principal rooms. The front dining room is anchored by a custom feature wall, setting the tone for the thoughtful millwork found throughout. An elevated powder room greets you upon entering & provides privacy & convenience through a hidden door. At the heart of the home, the chef-inspired kitchen blends beauty with purpose—two full pantries, crisp white uppers over matching oak lowers, a striking waterfall quartz island, exposed beams & professional KitchenAid appliances including a flat gas cooktop, built-in wall oven, & French-door fridge. Clean lines, elegant lighting, and generous prep space make this a true culinary hub. A well-designed butlers pantry & mudroom with custom built-ins keeps everyday essentials organized, The floor plan flows naturally into the inviting living room, where custom coffered ceilings & built-ins frame a cozy gas fireplace & create the perfect space to unwind or gather with friends & family. Large windows and an 8’ sliding patio door pull in west light and open directly to the backyard for easy indoor/outdoor living. Step outside to a sun-soaked west-facing backyard, complete with a large rear deck & BBQ gas line, ready for late summer evenings & weekend gatherings. A double garage plus a striking exterior finished in stucco & Hardie-board siding complete this exceptional property. Head up the alluring hardwood stairs to find more of the same hardwood floors & a thoughtfully placed built-in desk that creates the perfect homework zone or dedicated home office. A spacious laundry room with quartz countertop, pre-wash sink, plus extra storage ensures the second floor is as practical as it is comfortable.Retreat to the serene primary suite, where vaulted ceilings lift the space and morning sun pours through oversized windows. The ensuite reads like a private spa, offering a massive walk-in shower with body jets, (roughed in steam shower), double sinks, a deep free-standing soaker tub, & beautifully curated tile throughout. A custom walk-in closet completes the sanctuary. Two additional bedrooms sit down the hall. One even features its own custom built in closet.The lower level flexes effortlessly with family life—an expansive Rec room with custom built-in TV wall, a generous flex/rec area with a full wet bar, plus an additional bedroom and full bath, ideal for guests, teens, or extended family. Located close to schools, parks, playgrounds, shopping, transit, & major routes—offering a perfect blend of community charm & everyday convenience.

Inclusions: N/A

Building Features:

  • Air Conditioning: Yes
  • Total Finished Area: 1904.61

Property Features:

  • Bedrooms: 3+1
  • Bathrooms: 3+1
  • Architectural Style: 2 Storey, Side by Side
  • Built in: 2025
  • Construction Materials: Other, Stucco
  • Cooling: None, Rough-In
  • Exterior Features: Lighting
  • Fireplace Features: Gas, Mantle
  • Floor Space (approx): 1904.61 Square Feet
  • Flooring: Carpet, Hardwood, Tile
  • Foundation Details: Poured Concrete
  • Heating: In Floor, Fireplace(s), Forced Air, Natural Gas
  • Interior Features: Built-in Features, Closet Organizers, Double Vanity, High Ceilings, Kitchen Island, No Animal Home, Open Floorplan, Pantry, Recessed Lighting, Storage, Tray Ceiling(s), Vaulted Ceiling(s), Walk-In Closet(s), Wet Bar
  • Levels: Two
  • Lot Size: 2871.00 Square Feet
  • Parking Features: Double Garage Detached, See Remarks
  • Roof: Asphalt Shingle
  • Zoning: R-CG
  • No. of Parking Spaces: 4

Courtesy of: Real Broker

Data provided by: Calgary Real Estate Board 300 Manning Rd. NE, Calgary, Alberta T2E 8K4
All information displayed is believed to be accurate but is not guaranteed and should be independently verified. No warranties or representations are made of any kind. Copyright© 2021 All Rights Reserved