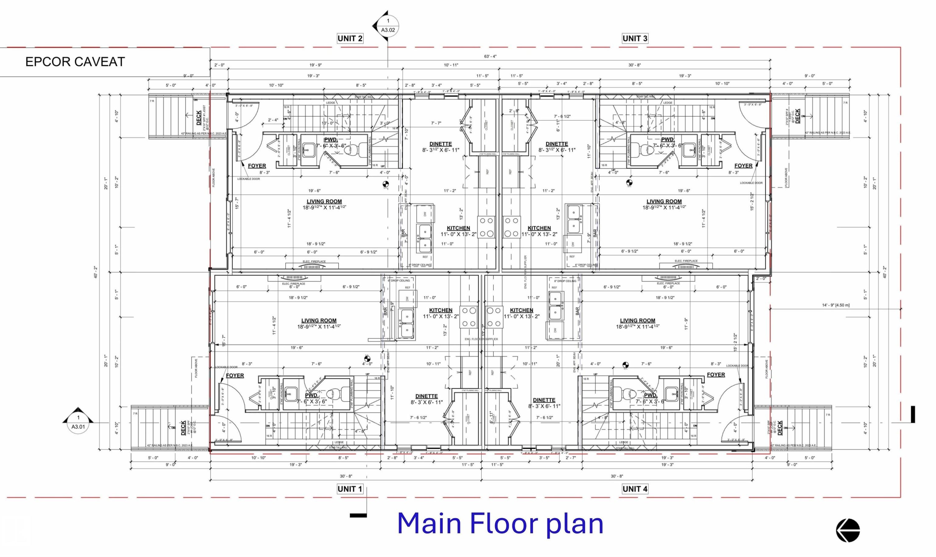
House For Sale In West Meadowlark Park, Edmonton, Alberta
$2,125,000 QuickQuoteTM: Not Available
QuickQuote There is not enough data on this property to provide a QuickQuote at this time, please connect with an expert.
QuickQuoteTM provides an estimated range of a property’s current market value and is based on local market insights and information available on the property. QuickQuoteTM is not an appraisal or a substitute for an in-person valuation done by an experienced professional. Learn more or connect with an expert
3+1 Beds
4 Baths
-
Details
-
Map
-
Demographics
-
Street View
-
Get Directions
-
Advertising










