$349,900

House For Sale In New Glasgow, Nova Scotia

$349,900
  • 3

    Bedrooms

  • 2

    Baths

Property Information:

Prime Location Meets Complete Renovation - 221 Maclean Street This beautifully renovated family home sits in one of New Glasgow's most walkable locations with an impressive Walk Score of 91 - a true Walker's Paradise where daily errands don't require a car! Completely Renovated Throughout: This property has been extensively renovated from the ground up, featuring hardwood and porcelain flooring, a stunning eat-in kitchen with quartz countertops and backsplash, updated bathrooms, new metal roof, vinyl siding, large vinyl windows, updated electrical, and foundation drainage improvements. Unbeatable Location: Walking distance to downtown New Glasgow shops and restaurants Steps to the scenic Riverfront and Sampson Trail Near New Glasgow Academy School Close to Carmichael Park Marina, recreation facilities, and public transit nearby Places of worship within easy reach Why This Property is a Great Buy: With its central location offering unparalleled walkability, complete top-to-bottom renovations including major systems (roof, electrical, foundation), and proximity to schools, parks, shopping, and the waterfront, this turnkey home offers exceptional value. The combination of modern updates and prime positioning makes this an ideal family home or smart investment property in a growing community.

Property Features:

  • Bedrooms: 3
  • Bathrooms: 2
  • Appliances Included: Range, Dishwasher, Dryer, Refrigerator
  • Basement: Undeveloped
  • Building Style: 2 Storey
  • Built in: Y
  • Community Features: Playground, Public Transit, School Bus Service, Shopping, Marina
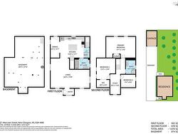
  • Documents on File: Floor Plan
  • Driveway/Parking: Gravel
  • Exterior Finish: Vinyl
  • Features: Ensuite Bath
  • Floor Space (approx): 1870 Square Feet
  • Flooring: Ceramic, Hardwood
  • Foundation: Concrete
  • Fuel Type: Electric
  • Heating/Cooling Type: Baseboard
  • Land Features: Fenced
  • Property Size: Under 0.5 Acres
  • Rental Equipment: None
  • Roof: Metal
  • Sewage Disposal: Municipal
  • Structures: Barn
  • Title to Land: Freehold
  • Utilities: Electricity, High Speed Internet
  • Water Source: Municipal
  • Garage: Other

Rooms:

  • Bedroom 2nd Level 19'7" x 13'8'
  • Bedroom 2nd Level 12'4"x13'8"
  • Bedroom 2nd Level 9'4"x8'6"
  • Bathroom 2nd Level 6'3"x9'0"
  • Den 2nd Level 6'6"x13'0"
  • Other Basement Level 26'x37'6"
  • Living Main Level 26'0"x19'8"
  • Dining Main Level 6'0"x13'7"
  • Kitchen Main Level 16'0"x13'7"
  • Bathroom Main Level 9'7"x6'8"
  • Other Main Level 4'6" x 8

Courtesy of: RE/MAX Nova (Halifax), RE/MAX Nova

Data provided by: Nova Scotia Association of REALTORS® 68 Highfield Park Drive, Suite 112, Dartmouth, Nova Scotia B3A 0E4
All information displayed is believed to be accurate but is not guaranteed and should be independently verified. No warranties or representations are made of any kind. Copyright© 2021 All Rights Reserved