1430 HIGHLAND Road W Unit# 7C, Kitchener, Ontario, N2N 3K6
$2,150.00 /monthMLS® # 40794285
Townhouse For Lease In Highland West, Kitchener, Ontario
2
Bedrooms
2
Baths
-
1412 sqft
FLOOR AREA
Property Information:
Beautiful 3-Level condo in the highly desirable Highland West neighbourhood of Kitchener! This modern and stylish 2-bed, 2-bath condo offers contemporary living with great convenience and upscale finishes in a vibrant community. Ideal for couples / roommates, a small family, or working professionals. Contact us today to see this rental unit! 2 Bedrooms 2 Bathrooms ( All new finishes) 6 Stainless Steel Appliances (Fridge, Dishwasher, Stove, Microwave, Washer & Dryer) Quartz Countertops In-unit Laundry Smart Ecobee Thermostat Central Heat & A/C New LED lighting throughout Ample Storage 2 Parking Spaces (Both underground - 1 Included, 2nd is additional $150.00 / month) 3 Balconies including Roof Top Terrace Natural Gas line for BBQ Open-concept living and dining area ideal for entertaining Fibre optic internet connection available Storage shed on the rooftop terrace for extra outdoor storage Shopping & Dining: Minutes from The Boardwalk Shopping Centre and a wide variety of restaurants, cafes, and services. Access to parks, walking trails, and greenspace nearby — perfect for outdoor activities and leisure. Transit & Commuting: Quick access to GRT transit routes and major highways including Highway 8 and the 401, making commuting a breeze. Nearby Schools & Amenities: Close to local schools, grocery stores, and community services ** Available NOW! ** *Non-Smoking Unit* *Tenant Insurance is Mandatory and Must be Provided on Move in Day* *Any Unit Listed by KWP That States All Inclusive Will Have a Cap Included* *See sales brochure below for showing instructions* (id:27)
Building Features:
- Style: Townhouse
- Building Type: Row / Townhouse
- Architectural Style: 2 Level
- Basement Type: None
- Construction Style - Attachment: Attached
- Exterior Finish: Brick, Stucco
- Floor Space: 1412 sqft
- Heating Type: Forced air
- Heating Fuel: Natural gas
- Cooling Type: Central air conditioning
- Appliances: Dishwasher, Dryer, Microwave, Refrigerator, Stove, Washer
Property Features:
- OwnershipType: Condominium
- Property Type: Single Family
- Bedrooms: 2
- Bathrooms: 2
- Half Bathrooms: 1
- Amenities Nearby: Public Transit
- Built in: 2017
- Features: Balcony, Paved driveway
- Floor Space (approx): 1412 Square Feet
- MaintenanceFee Type: Other, See Remarks
- Zoning: A
- Sewer: Municipal sewage system
- Parking Type: Underground
- No. of Parking Spaces: 1
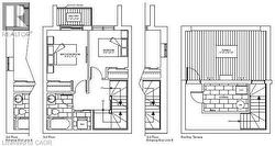
Rooms:
- Bathroom 2nd Level Measurements not available
- Bedroom 2nd Level 8'6'' x 8'3''
- Primary Bedroom 2nd Level 11'3'' x 9'0''
- Bathroom Main Level Measurements not available
- Dining Main Level 7'0'' x 6'10''
- Kitchen Main Level 8'8'' x 7'7''
- Living Main Level 10'3'' x 8'11''
Courtesy of: Vancor Realty Inc.
This listing content provided by REALTOR.ca has been licensed by REALTOR® members of The Canadian Real Estate Association.
This listing content provided by REALTOR.ca has been licensed by REALTOR® members of The Canadian Real Estate Association.
Additional Photos











