$829,900

House For Sale In Jackson, London South (South U), Ontario

$829,900
  • 4

    Bedrooms

  • 3

    Baths

  • 42 x 98 FT

    Lot Size

Property Information:

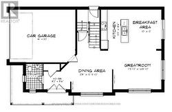
TO BE BUILT: Sunlight Heritage Homes presents the Percy Model, an exceptional home designed to cater to your family's needs and desires. Situated in the desirable Old Victoria on the Thames community, this residence offers a perfect blend of contemporary style and timeless charm. The Percy Model boasts a well- planned 2,030 square feet layout, featuring 4 bedrooms and 2.5 baths, providing ample space for both relaxation and the conveniences of everyday living. The 1.5 car garage offers convenient storage and parking solutions. Set on a prominent corner lot, the home enjoys enhanced curbappeal and additional outdoor space. The unfinished basement offers a versatile space with endless potential. Experience superior craftsmanship and thoughtful design in the Percy Model, and become a part of the vibrant Old Victoria community. Standard features include 36" high cabinets in the kitchen, quartz countertops in the kitchen, 9' ceilings on main floor, hardwood flooring throughout main level, stainless steel chimney style range hood in kitchen, crown and valance on kitchen cabinetry, built in microwave shelf in kitchen, coloured windows on the front of the home, basement bathroom rough-in. Photos are from previous model and show upgraded items. (id:7525)

Building Features:

  • Style: Detached
  • Building Type: House
  • Basement Development: Unfinished
  • Basement Type: Full
  • Construction Style - Attachment: Detached
  • Exterior Finish: Brick, Vinyl siding
  • Floor Space: 2000 - 2500 sqft
  • Foundation Type: Poured Concrete
  • Heating Type: Forced air
  • Heating Fuel: Natural gas
  • Cooling Type: Central air conditioning
  • Appliances: Hood Fan

Property Features:

  • OwnershipType: Freehold
  • Property Type: Single Family
  • Bedrooms: 4
  • Bathrooms: 3
  • Half Bathrooms: 1
  • Features: Sump Pump
  • Floor Space (approx): 2000 - 2500 Square Feet
  • Irregular: Yes
  • Lot Depth: 98.0 Feet
  • Lot Frontage: 42.0 Feet
  • Lot Size: 42 x 98 FT
  • Sewer: Sanitary sewer
  • Parking Type: Attached garage, Garage
  • No. of Parking Spaces: 3

Courtesy of: Royal LePage Triland Realty

This listing content provided by REALTOR.ca has been licensed by REALTOR® members of The Canadian Real Estate Association.