$865,000

House For Sale In Bowes, Milton, Ontario

$865,000
  • 3

    Bedrooms

  • 3

    Baths

  • 2

    Parking Spaces

Property Information:

Move-in ready, beautifully finished, and built in 2024, this is the kind of home buyers dream about! Welcome to this end-unit freehold townhome in Milton, offering 3 bedrooms, 3 bathrooms, and a thoughtful contemporary layout across three levels with 2 parking spots. The main floor impresses with high 9-foot ceilings and an open-concept design featuring luxury vinyl flooring throughout. The kitchen boasts granite countertops, stainless steel appliances, including a gas stove, a centre island with seating, a pantry, and an adjacent dining area perfect for gatherings. The bright living room opens to a covered balcony with a built-in gas line for convenient BBQs. For added convenience, enjoy the separate den, ideal for an office, and it is perfect for work or study. The main floor is complemented by a convenient 2-pc bathroom. Upstairs, the third floor offers three well-sized bedrooms. The primary bedroom offers a walk-in closet and a 3-pc ensuite, while the other two bedrooms each feature double closets, with the third bedroom enhanced by a charming Juliette balcony. This level also includes a 4-pc bathroom, an ensuite laundry, and a linen closet for added convenience. The ground floor features high 9-foot ceilings, direct access to the garage equipped with an accessibility point for an optional EV charger, a spacious storage room, a double closet, tile flooring, and a baseboard heater at the entrance for added comfort. Situated in a growing Milton community, you are just minutes from parks, schools, shopping, restaurants, transit, and all your everyday essentials, making this home as practical as it is inviting. (id:7525)

Building Features:

  • Style: Townhouse
  • Building Type: Row / Townhouse
  • Architectural Style: 3 Level
  • Basement Type: None
  • Construction Style - Attachment: Attached
  • Exterior Finish: Brick
  • Floor Space: 1509 sqft
  • Foundation Type: Poured Concrete
  • Heating Type: Forced air
  • Heating Fuel: Natural gas
  • Cooling Type: Central air conditioning
  • Appliances: Dishwasher, Dryer, Refrigerator, Washer, Gas stove(s), Hood Fan, Window Coverings, Garage door opener

Property Features:

  • OwnershipType: Freehold
  • Property Type: Single Family
  • Bedrooms: 3
  • Bathrooms: 3
  • Half Bathrooms: 1
  • Amenities Nearby: Park, Schools
  • Built in: 2024
  • Features: Southern exposure
  • Floor Space (approx): 1509 Square Feet
  • Lot Depth: 44 Feet
  • Lot Frontage: 27 Feet
  • Zoning: RMD1-315
  • Sewer: Municipal sewage system
  • Parking Type: Attached garage
  • No. of Parking Spaces: 2

Rooms:

  • Bathroom 2nd Level Measurements not available
  • Bathroom 3rd Level Measurements not available
  • Bedroom 3rd Level 12'4'' x 8'4''
  • Bedroom 3rd Level 11'7'' x 9'1''
  • Primary Bedroom 3rd Level 12'2'' x 10'3''
  • Den Main Level 13'3'' x 8'4''
  • Dining Main Level 10'5'' x 10'1''
  • Living Main Level 13'10'' x 11'10''
  • Kitchen Main Level 10'10'' x 9'9''
  • Bathroom Main Level Measurements not available

Courtesy of: Royal LePage Real Estate Associates

This listing content provided by REALTOR.ca has been licensed by REALTOR® members of The Canadian Real Estate Association.

  • View of front of house with asphalt driveway, brick siding, a garage, and stone siding -
  • Entrance to property featuring driveway, an attached garage, brick siding, and stucco siding -
  • Corridor with light tile patterned floors and built in features -
  • Entryway with light tile patterned floors and baseboards -
  • Staircase featuring baseboard heating and tile patterned floors -
  • Living area featuring light wood-type flooring and baseboards -
  • Living room featuring light wood-type flooring -
  • Living room featuring light wood-style flooring and baseboards -
  • Kitchen with appliances with stainless steel finishes, white cabinetry, a kitchen island, a kitchen breakfast bar, and hanging light fixtures -
  • Kitchen featuring white cabinetry, stainless steel appliances, a kitchen bar, light countertops, and a kitchen island -
  • Kitchen with appliances with stainless steel finishes, light countertops, white cabinets, a breakfast bar area, and a kitchen island -
  • Kitchen with stainless steel appliances, white cabinets, and under cabinet range hood -
  • Kitchen featuring white cabinets, light wood-type flooring, decorative light fixtures, and a center island -
  • Dining area with light wood-style floors -
  • Dining room featuring light wood-style flooring -
  • Dining area featuring light wood-style floors -
  • Home office with wood finished floors and baseboards -
  • Bathroom featuring toilet and light tile patterned floors -
  • Balcony featuring a residential view -
  • Hall featuring light wood-style floors and a textured ceiling -
  • Bedroom with light wood-type flooring and a textured ceiling -
  • Bedroom featuring a walk in closet, ensuite bathroom, and a textured ceiling -
  • Full bath with vanity, a shower stall, and dark tile patterned floors -
  • Bedroom with baseboards and light carpet -
  • Living room featuring carpet floors and baseboards -
  • Balcony featuring a residential view -
  • Full bathroom with vanity, light tile patterned floors, and shower / bath combo -
  • Laundry area featuring wood finished floors and separate washer and dryer -
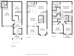
  • View of property floor plan -