$1,590,000

House For Sale In Orillia, Ontario

$1,590,000
  • 5

    Bedrooms

  • 4

    Baths

  • 83 x 214 FT ; irr

    Lot Size

Property Information:

Welcome to 407 Bay Street, Orillia - located in one of the city's most desirable neighbourhoods. This stunning custom-built 5-bedroom, 3.5-bath, two-storey home showcases exceptional craftsmanship, modern design, and high-end finishes throughout. The main level offers an open-concept dining area and a gorgeous farmhouse-style kitchen featuring a custom oak island, quartz countertops, floating shelves, and a pot filler. The living room boasts a beautiful brick accent wall and a gas fireplace, complemented by an office, 2-piece bath, and a spacious laundry/mudroom with garage access and a walkout to the rear deck. Upstairs, you'll find three bedrooms, including a bright primary suite with a 3-piece ensuite, plus an additional 4-piece bath. The fully finished lower level features a large recreation room with a gas fireplace, wet bar/kitchenette, walkout to the backyard, two additional bedrooms, a 3-piece bath, fitness area, utility room, and storage. The backyard is perfect for family enjoyment, backing onto scenic recreational trails and featuring an in-ground pool with a newer liner and concrete surround. This home has been extensively updated with premium finishes - custom millwork, built-in cabinetry, ship lap details, cedar accents, stunning tile work, upgraded fixtures, and elegant brass hardware. Additional updates include a metal roof, new main and second level windows, composite decking, Regal railing and more. Located across the street from Lake Couchiching, water access from Fittons Rd or Borland St, just minutes to downtown, Couchiching Beach Park, boat launch, shopping and more. A truly remarkable home that must be seen in person to be appreciated. (id:27)

Building Features:

  • Style: Detached
  • Building Type: House
  • Amenities:
  • Basement Development: Finished
  • Basement Type: N/A, N/A, Full
  • Construction Style - Attachment: Detached
  • Exterior Finish: Brick, Vinyl siding
  • Fireplace Type: Insert
  • Floor Space: 2000 - 2500 sqft
  • Foundation Type: Block
  • Heating Type: Forced air
  • Heating Fuel: Natural gas
  • Cooling Type: Central air conditioning
  • Appliances: Garage door opener remote, Range, Water meter, Blinds, Dishwasher, Dryer, Stove, Washer, Window Coverings, Refrigerator

Property Features:

  • OwnershipType: Freehold
  • Property Type: Single Family
  • Bedrooms: 3+2
  • Bathrooms: 4
  • Half Bathrooms: 1
  • Amenities Nearby: Golf Nearby, Hospital, Park, Public Transit
  • Features: Sloping, Level
  • Fence Type: Fenced yard
  • Floor Space (approx): 2000 - 2500 Square Feet
  • Irregular: Yes
  • Lot Depth: 214 Feet
  • Lot Frontage: 83 Feet
  • Lot Size: 83 x 214 FT ; irr
  • Pool Type: Inground pool
  • Utility Type: Sewer - Installed, Hydro - Installed, Cable - Installed
  • Zoning: R1
  • Sewer: Sanitary sewer
  • Parking Type: Attached garage, Garage
  • No. of Parking Spaces: 6

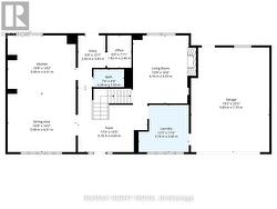
Rooms:

  • 3rd Bedroom 2nd Level 4.97 m x 3.01 m
  • Bathroom 2nd Level 3.18 m x 1.63 m
  • Primary Bedroom 2nd Level 3.91 m x 4.25 m
  • Bathroom 2nd Level 4.24 m x 2.26 m
  • 2nd Bedroom 2nd Level 3.18 m x 4.27 m
  • Recreation Room Basement Level 9.46 m x 5.05 m
  • Bedroom Basement Level 3.91 m x 3.86 m
  • Bedroom Basement Level 3.76 m x 4.45 m
  • Bathroom Basement Level 3.33 m x 2.13 m
  • Kitchen Basement Level 3.00 m x 1.00 m
  • Kitchen Main Level 5.08 m x 4.31 m
  • Dining Main Level 5.08 m x 4.31 m
  • Living Main Level 4.16 m x 5.03 m
  • Laundry Main Level 3.74 m x 3.49 m
  • Office Main Level 1.82 m x 2.40 m
  • Foyer Main Level 5.18 m x 4.69 m
  • Bathroom Main Level 2.28 m x 1.33 m

Courtesy of: RE/MAX RIGHT MOVE

This listing content provided by REALTOR.ca has been licensed by REALTOR® members of The Canadian Real Estate Association.

This listing content provided by REALTOR.ca has been licensed by REALTOR® members of The Canadian Real Estate Association.