$669,900

House For Sale In Beacon Hill South - Cardinal Heights, Ottawa, Ontario

$669,900
  • 3

    Bedrooms

  • 1

    Bath

  • 60 x 202.3 FT ; yes

    Lot Size

Property Information:

991 Blair Road - Prime Location with endless potential! Situated in an ideal location with easy access to shopping, the LRT, CSIS, Costco, recreational facilities, restaurants, and quick access to highway. This property offers both convenience and tranquility. The oversized lot, boasting close to 200 feet of depth, features a lush, private backyard oasis, perfect for relaxation or outdoor entertainment. This 3 bedroom bungalow provides ample space with a good size kitchen, a combined living/dining room currently used as a dining area. A cozy wood-burning fireplace adds charm, while crown molding and recessed pot lights elevate the ambiance. A small but practical addition at the back of the home serves as a home office, offering both functionality and comfort. The basement is partly finished, with plumbing and fixtures already in place for a secondary bathroom, its easy to make this space your own. The detached garage is a tradespersons dream, heated, insulated, and well-lit with abundant power to handle all your projects. The back patio, accessible from the kitchen, is the perfect spot for outdoor dining or lounging, and the property also features a sturdy 8x16 shed with in-floor heating and dual 15-amp services, providing even more possibilities for storage or work. (id:27)

Building Features:

  • Style: Detached
  • Building Type: House
  • Amenities:
  • Architectural Style: Bungalow
  • Basement Development: Partially finished
  • Basement Type: N/A
  • Construction Style - Attachment: Detached
  • Exterior Finish: Brick, Vinyl siding
  • Fireplace: Yes
  • Floor Space: 1100 - 1500 sqft
  • Foundation Type: Poured Concrete
  • Heating Type: Forced air
  • Heating Fuel: Natural gas
  • Cooling Type: Central air conditioning
  • Appliances: Central Vacuum, Dishwasher, Dryer, Garage door opener, Hood Fan, Stove, Washer, Refrigerator

Property Features:

  • OwnershipType: Freehold
  • Property Type: Single Family
  • Bedrooms: 3
  • Bathrooms: 1
  • Features: Irregular lot size
  • Floor Space (approx): 1100 - 1500 Square Feet
  • Irregular: Yes
  • Lot Depth: 202.2 Feet
  • Lot Frontage: 60 Feet
  • Lot Size: 60 x 202.3 FT ; yes
  • Structure Type: Patio(s)
  • Zoning: residential
  • Sewer: Sanitary sewer
  • Parking Type: Detached garage, Garage
  • No. of Parking Spaces: 4

Rooms:

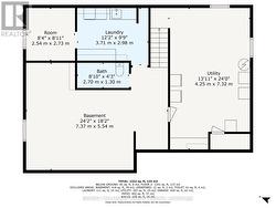
  • Den Lower Level 2.54 m x 2.73 m
  • Bathroom Lower Level 2.70 m x 1.30 m
  • Utility Lower Level 4.25 m x 7.32 m
  • Recreation Room Lower Level 7.37 m x 5.54 m
  • Laundry Lower Level 3.71 m x 2.98 m
  • Dining Main Level 2.58 m x 4.14 m
  • Living Main Level 3.78 m x 3.81 m
  • Kitchen Main Level 4.15 m x 3.39 m
  • Primary Bedroom Main Level 4.15 m x 3.42 m
  • Bedroom Main Level 2.83 m x 4.00 m
  • Bedroom Main Level 2.66 m x 2.99 m
  • Office Main Level 5.96 m x 2.33 m
  • Bathroom Main Level 2.10 m x 3.42 m

Courtesy of: RE/MAX HALLMARK REALTY GROUP

This listing content provided by REALTOR.ca has been licensed by REALTOR® members of The Canadian Real Estate Association.

This listing content provided by REALTOR.ca has been licensed by REALTOR® members of The Canadian Real Estate Association.