2 KENT STREET, St. Catharines (Western Hill), Ontario, L2S 1H1
$429,000MLS® # X12635382
House For Sale In Old Western Hill, St. Catharines (Western Hill), Ontario
3
Bedrooms
3
Baths
-
35 x 105 FT
Lot Size
Property Information:
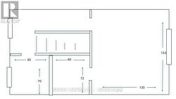
Limited photo's for Tenant privacy! See tenant provided sketch of all three levels. A rare find in St. Catharines. 1 1/2 Storey home with addition off the back. The home is a 3 Bedroom, possible Four bedroom home with 2 1/2 BATHS. You read that Correctly.... 2 Full baths on the main floor and a 2 piece bathroom on second floor. The Primary bedroom could be any of the current 3 bedrooms. From entering the front door, the home has a central staircase, that divides the front of the house into a formal dining room to the right (just off the kitchen) and a good sized living room, located to the left of the stairs. The layout of the home could allow for the living room to become a bedroom as well. The central staircase takes you to a private bedroom with it's own 2 Pc. Bath (No negotiating the stairs for middle of the night bathroom break) The 2 main floor bedrooms essentially have there own bathroom. A second bathroom abuts the first bathroom on the main floor. The original home has a full basement (ceiling height is 6.4 feet ). The addition is a crawl space. In the basement find 2 good sized utility rooms and a bonus room that could become a fourth bedroom or cozy game room for the kids or exercise room. The home has a private driveway and good sized yard. The tenants are mom and dad, with 2 kids. They are AAA people and tenants. The condition of sale would be a longer close, as they have agreed to relocate. Or a potential buyer is an investor, who would negotiate to keep the family. (id:27)
Building Features:
- Style: Detached
- Building Type: House
- Basement Type: None, Partial
- Construction Style - Attachment: Detached
- Exterior Finish: Vinyl siding
- Floor Space: 1100 - 1500 sqft
- Foundation Type: Block, Concrete
- Heating Type: Forced air
- Heating Fuel: Natural gas
- Cooling Type: None
- Appliances: Water meter
Property Features:
- OwnershipType: Freehold
- Property Type: Single Family
- Bedrooms: 3
- Bathrooms: 3
- Half Bathrooms: 1
- Floor Space (approx): 1100 - 1500 Square Feet
- Irregular: Yes
- Lot Depth: 105 Feet
- Lot Frontage: 35 Feet
- Lot Size: 35 x 105 FT
- Zoning: R2
- Sewer: Sanitary sewer
- Parking Type: No Garage
- No. of Parking Spaces: 3
Rooms:
- Primary Bedroom 2nd Level 4.00 m x 4.00 m 13.12 ft x 13.12 ft
- Bathroom 2nd Level 1.75 m x 1.75 m 5.74 ft x 5.74 ft
- Utility Basement Level 2.30 m x 1.70 m 7.55 ft x 5.58 ft
- Recreation Room Basement Level 5.80 m x 2.90 m 19.03 ft x 9.51 ft
- Utility Basement Level 3.20 m x 2.50 m 10.50 ft x 8.20 ft
- Living Main Level 4.90 m x 2.00 m 16.08 ft x 6.56 ft
- Dining Main Level 3.20 m x 3.00 m 10.50 ft x 9.84 ft
- Kitchen Main Level 3.35 m x 2.31 m 10.99 ft x 7.58 ft
- 2nd Bedroom Main Level 3.35 m x 3.20 m 10.99 ft x 10.50 ft
- 3rd Bedroom Main Level 4.60 m x 2.60 m 15.09 ft x 8.53 ft
- Bathroom Main Level 2.44 m x 2.13 m 8.01 ft x 6.99 ft
- Bathroom Main Level 2.60 m x 1.50 m 8.53 ft x 4.92 ft
Courtesy of: REVEL Realty Inc., Brokerage
This listing content provided by REALTOR.ca has been licensed by REALTOR® members of The Canadian Real Estate Association.
This listing content provided by REALTOR.ca has been licensed by REALTOR® members of The Canadian Real Estate Association.
Additional Photos


