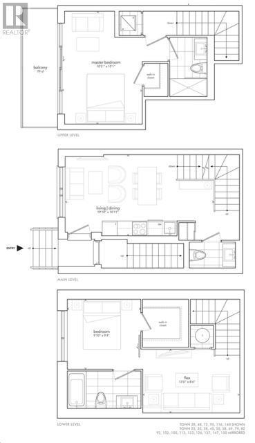
Townhouse For Lease In Dublin Heights, Toronto, Ontario
$2,900.00 /month2 Beds
3 Baths
-
Details
-
Map
-
Demographics
-
Street View
-
Get Directions
-
Advertising
Sales/Price History
Log in or create an account to see sold and historical listings information

















