301-1390 Rue Hyman, Montréal (Pierrefonds-Roxboro), QC, H8Y 3N8
$499,000MLS® # 26598036
Condo For Sale In Bois-de-Liesse Nature Park, Montréal (Pierrefonds-Roxboro), Quebec
3
Bedrooms
1
Baths
-
$509
Maintenance Fees
Property Information:
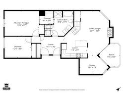
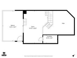
Top-floor, two-level corner condo offering 1,348 sq. ft. of living space with an open and functional layout. This bright and private unit features a mezzanine with a large rooftop terrace, a main-floor balcony, two bedrooms and an office that previously served as a dining area. The bathroom includes a tub and a rainfall + jet shower. Renovations include updated floors, kitchen, bathroom, an electric fireplace and a heat pump for added comfort. Ideally located near transit, parks, schools, shopping and major highways. Steps from bus stops and 5 minute walk to the REM. Includes an indoor garage, an exterior parking space and access to the pool.
Property Features & Upgrades
* Spacious 1,348 sq. ft. condo on two levels, located on the top floor and positioned as a corner unit, providing privacy, abundant natural light, and open views.
* Functional layout including a mezzanine with a private rooftop terrace, a main-floor balcony, two bedrooms, an office (previously used as a dining area), and a full bathroom equipped with a tub and a rainfall + jet shower system.
* Renovations and updates include upgraded floors, a remodeled kitchen, a renovated bathroom, and a conversion to an electric fireplace paired with a heat pump, offering comfort and energy efficiency.
* Well-managed building offering an indoor garage space, an exterior parking space, an in-ground pool, visitor parking and common areas.
Neighbourhood & Transit Access
* Prime location in Pierrefonds / West Island, close to essential services, parks, schools, grocery stores, and major commercial sectors.
* Public transit steps from the building: the nearest bus stop is approx. a 1-minute walk away, providing quick access to the West Island network (notably routes 208 and 356 toward key neighbourhoods and central Montréal).
* REM station located approx. a 5-minute walk from the property, offering rapid access to downtown Montréal in approx. 20 minutes.
* Quick access to major West Island road arteries and highways, including Highways 13 & 40, allowing efficient daily commutes, easy access to shopping districts, and fluid travel across the city.
Summary
A bright and turnkey two-level condo offering private outdoor spaces, meaningful upgrades, strong building amenities, and a top-floor corner position that enhances light, tranquility, and long-term livability. Its proximity to parks, services, public transit, the REM, and highway access makes it ideal for buyers seeking comfort, practicality, and excellent mobility. A solid option for personal occupancy or investment.
CADASTRAL DESCRIPTION -- COMMON PORTIONS
1902459, 1902460, 1902461, 1902462, 1902463, 1902464, 1902465, 1902466, 19024
Inclusions: Stove, dishwasher, washer and dryer, heat pump, all light fixtures, window coverings and curtain rods, microwave, and electric fireplace.
Exclusions : Refrigerator, shelfing in mezzanine, metal shelving units in the garage, and speakers in the mezzanine.
Building Features:
- Style: Apartment
- Bathroom: Ensuite bathroom, Separate shower
- Building amenity and common areas: Outdoor pool, Visitor parking
- Building's distinctive features: Corner unit
- Driveway: Asphalt
- Garage: Attached, Heated, Single width
- Kitchen Cabinets: Wood
- Parking: Driveway, Garage
- Pool: Heated, Inground
- Property or unit amenity: Private balcony, Fire detector, Sprinklers, Intercom, Electric garage door opener, Outside storage, Inside storage, Wall-mounted heat pump
- Proximity: Highway, Daycare centre, Park, Bicycle path, Elementary school, Réseau Express Métropolitain (REM), Commuter train, Public transportation
- Rented Equipment (monthly): Water heater
- Roofing: Asphalt shingles
- Siding: Brick
- Window Type: Sliding
- Windows: Aluminum
- Heating System: Electric baseboard units
- Heating Energy: Electricity
- Water Supply: Municipality
- Sewage System: Municipality
Taxes:
- Municipal Tax: $2,575
- School Tax: $304
- Annual Tax Amount: $2,879
Property Assessment:
- Lot Assessment: $73,400
- Building Assessment: $312,900
- Total Assessment: $386,300
Property Features:
- Bedrooms: 2+1
- Bathrooms: 1
- Built in: 1990
- Floor Space (approx): 1348.0 Square Feet
- Lot Size: 2027.00 Square Feet
- Zoning: RESI
- No. of Parking Spaces: 2
Rooms:
- Other 3rd Level 4.55 m x 2.49 m 14.11 ft x 8.2 ft Flooring: Ceramic
- Living - Irregular 3rd Level 6.30 m x 6.20 m 20.8 ft x 20.4 ft Flooring: Wood
- Kitchen 3rd Level 3.56 m x 2.36 m 11.8 ft x 7.9 ft Flooring: Granite
- Office - Irregular 3rd Level 4.09 m x 2.64 m 13.5 ft x 8.8 ft Flooring: Wood
- Primary Bedroom 3rd Level 4.83 m x 3.48 m 15.10 ft x 11.5 ft Flooring: Wood
- Walk-in Closet 3rd Level 1.88 m x 1.78 m 6.2 ft x 5.10 ft Flooring: Wood
- Bedroom 3rd Level 3.66 m x 2.95 m 12.0 ft x 9.8 ft Flooring: Wood
- Bathroom - Irregular 3rd Level 2.69 m x 3.48 m 8.10 ft x 11.5 ft Flooring: Ceramic
- Laundry 3rd Level 0.84 m x 1.60 m 2.9 ft x 5.3 ft Flooring: Ceramic
- Family - Irregular Other level 4.52 m x 6.10 m 14.10 ft x 20.0 ft Flooring: Wood
- Storage Other level 2.69 m x 1.52 m 8.10 ft x 5.0 ft Flooring: Carpet
Courtesy of: Royal LePage du Quartier
Data provided by: Centris - 600 Ch Du Golf, Ile -Des -Soeurs, Quebec H3E 1A8
All information displayed is believed to be accurate but is not guaranteed and should be independently verified. No warranties or representations are made of any kind. Copyright© 2021 All Rights Reserved.
Mobile:514.625.7788
Additional Photos


















