$699,000

Condo For Sale In Valois, Pointe-Claire, Quebec

$699,000
  • 2

    Bedrooms

  • 2+1

    Baths

  • $854

    Maintenance Fees

Property Information:

Spacious and rare two-story penthouse with 2 indoor parking spots, 24 hour doorman, and an elevator reserved for the penthouse floors.Open and spacious kitchen, large living area. Powder room and office on the main floor.Second floor (also accessible by elevator) has two large bedrooms, large closets and a laundry area.The Primary bedroom has an en-suite bathroom and walk-in closet.Enjoy the lake views while sipping coffee from your large balcony.Enjoy peace of mind with an automatic water shut-off.No need to leave home with a pool, gym, jacuzzi, sauna and rooftop terrace. Available immedidately.

Inclusions: Oven, fridge, dishwasher, microwave, light fixtures and curtains,washer and dryer

Building Features:

  • Style: Apartment
  • Animal types: Cats allowed, Dogs allowed
  • Bathroom: Ensuite bathroom
  • Building amenity and common areas: Elevator, Balcony/terrace, Garbage chute, Fitness room, Leak detection system, Indoor pool, Indoor storage space, Sauna, Hot tub/Spa, Visitor parking, Roof terrace
  • Garage: Attached, Heated, Built-in
  • Parking: Garage
  • Pool: Heated, Inground, Indoor
  • Property or unit amenity: Private balcony, Wall-mounted air conditioning, Fire detector, Air exchange system, Sprinklers, Electric garage door opener, Inside storage
  • Proximity: Highway, Daycare centre, Golf, Bicycle path, Elementary school, Commuter train
  • Rented Equipment (monthly): Water heater
  • Size: 29.4 x 23.7 Feet
  • View: View of the water
  • Heating System: Electric baseboard units
  • Heating Energy: Electricity
  • Water Supply: Municipality
  • Sewage System: Municipality

Taxes:

  • Municipal Tax: $4,163
  • School Tax: $529
  • Annual Tax Amount: $4,692

Property Assessment:

  • Lot Assessment: $99,300
  • Building Assessment: $553,800
  • Total Assessment: $653,100

Property Features:

  • Bedrooms: 2
  • Bathrooms: 2
  • Half Bathrooms: 1
  • Built in: 2001
  • Floor Space (approx): 1470.0 Square Feet
  • Irregular: Yes
  • Zoning: RESI
  • No. of Parking Spaces: 2

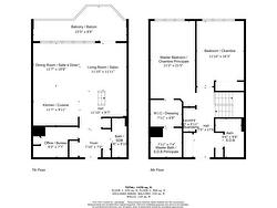
Rooms:

  • Kitchen Ground Level 3.53 m x 3.02 m Flooring: Ceramic
  • Living Ground Level 3.61 m x 3.63 m Flooring: Parquetry
  • Dining Ground Level 3.53 m x 3.25 m Flooring: Parquetry
  • Office Ground Level 2.82 m x 2.31 m Flooring: Parquetry
  • Other Ground Level 2.39 m x 2.13 m Flooring: Ceramic
  • Powder room Ground Level 2.44 m x 3.00 m Flooring: Ceramic
  • Primary Bedroom 2nd Level 3.43 m x 6.53 m Flooring: Parquetry Note: Ensuite
  • Walk-in Closet 2nd Level 2.41 m x 2.03 m Flooring: Parquetry
  • Bathroom 2nd Level 2.41 m x 2.24 m Flooring: Ceramic
  • Bedroom 2nd Level 3.61 m x 4.95 m Flooring: Parquetry
  • Bathroom 2nd Level 1.98 m x 2.95 m Flooring: Ceramic
  • Foyer 2nd Level 5.33 m x 2.26 m Flooring: Parquetry
  • Laundry 2nd Level 0.91 m x 1.80 m Flooring: Ceramic

Courtesy of: Royal LePage Village

Data provided by: Centris - 600 Ch Du Golf, Ile -Des -Soeurs, Quebec H3E 1A8
All information displayed is believed to be accurate but is not guaranteed and should be independently verified. No warranties or representations are made of any kind. Copyright© 2021 All Rights Reserved.

  • Kitchen -
  • Living room -
  • Barn -
  • Kitchen -
  • Living room -
  • Kitchen -
  • Dining room -
  • Dining room -
  • Balcony -
  • Other -
  • Hall -
  • Office -
  • Office -
  • Powder room -
  • Powder room -
  • Dining room -
  • Living room -
  • Living room -
  • Kitchen -
  • Living room -
  • Primary bedroom -
  • Primary bedroom -
  • Primary bedroom -
  • Ensuite bathroom -
  • Walk-in closet -
  • Bedroom -
  • Other -
  • Bedroom -
  • Bedroom -
  • Bathroom -
  • Bathroom -
  • Hall -
  • Hall -
  • Bathroom -
  • Bathroom -
  • Garage -
  • Exterior entrance -
  • Exterior -
  • Reception area -
  • Hall -
  • Other -