700 Mtée de l'Adret, Sainte-Adèle, QC, J8B 0E6
$1,125,000MLS® # 23871752
House For Sale In Sainte-Adèle, Quebec
3
Bedrooms
2+1
Baths
-
45161.22 Square Feet
Lot Size
Property Information:
Reduced price! Sunny and dreamy home at a price well below the construction cost! Breathtaking view of the mountains and the horizon in all seasons. Impeccable property with high-quality construction. 3 bedrooms, 2 ½ bathrooms, garden level, abundant windows, double garage, water radiant floors, and generator. It's worth discovering from the inside ... see addendum, photos, and 3D. INCREDIBLE!
Private Estate Le Versant SUD.
Less than 3 km from exit 72. Never deal with trafic jam anymore!!
In communion with nature and its wildlife. Security, and tranquility, and very close to all the amenities and activities of Saint-Sauveur and Sainte-Adèle such as restaurants, bakeries, Lac Rond, the cinema, multiple trails, and many outdoor activities.
Main level: Main entrance with large closet, powder room, pantry area, bedroom with Murphy bed that serves as an office. Open concept living space where the sun shines all day with the superb kitchen, large island, breakfast area at the counter, dining room, living room with 18-foot ceiling. The gas fireplace mantel is all slate.
The screened veranda is an extension of the house throughout the summer season, with (4) patio heaters, this room extends the summer and offers a splendid view of nature all season long. Could the perfect room to have a Jacuzzi!
Garden level: Garage and garden level with large family room, efficient and ecological Finnish wood stove (Scandinavian), full bathroom with large shower and washer-dryer area, mechanical room with space for storage. And a beautiful bedroom ideal for guests. Possibility of adding a 4th bedroom on this level easily.
Mezzanine level: Master's quarters with adjoining bathroom, freestanding bathtub, and a separate shower. A walk-in closet. The blinds are electrically activated.
Assets and highlights:
- Radiant water-heated floors on the entire concrete surface on the garden level with three zones
- Forced air heating & air conditioning
- The central system including air conditioning has two zones guaranteeing comfort in summer and winter throughout the house.
- 400 amp electrical input
- GENERAC propane generator that activates instantly during power outages
- Polyurea epoxy floor garage with practical Zywall wall and integrated dehumidifier
- Wiring and panel for electric vehicle
- Triple-glazed window to the north and double-glazed with film against the sun on the south facade
- Asp. Ctrl Rétraflex, 3 outlets and 3 Wally, and the kick-in the kitchen
- Noble and natural materials such as stones on all counters, wood, and slate on the floors, etc.
- Sub Zero and Wolf appliances with high-performance hood
- Electric heated floor in bathroom Att. to the master bedroom
- Maple wood floors (pure Genius without VOC = volatile organic compound) ... ecological way
- And much MORE.
DON'T MISS THIS ONE!
Inclusions: Light fixtures, curtain rods, blinds, 3 works of art (steel plaques signed by the artist), Murphy bed with mattress, ceiling fan, kitchen appliances, water dispenser, alarm system and two cameras, GENERAC generator.
Exclusions : Furniture, personal belongings, washer and dryer who might be negociable.
Building Features:
- Style: Detached
- Animal types: Pets allowed
- Basement: 6 feet and more, Outdoor entrance, Finished basement
- Bathroom: Ensuite bathroom, Separate shower
- Distinctive Features: No rear neighbours, Cul-de-sac
- Driveway: Asphalt
- Fireplace-Stove: Gas fireplace, Wood stove
- Foundation: Poured concrete, Concrete slab on ground
- Garage: Heated, Double width or more, Built-in
- Kitchen Cabinets: Melamine
- Lot: Wooded, Landscaped
- Parking: Driveway, Garage
- Property or unit amenity: Central vacuum cleaner system installation, Central air conditioning, Fire detector, Air exchange system, Electric garage door opener, Partially furnished, Alarm system
- Proximity: Highway, Daycare centre, Golf, Park, Bicycle path, Elementary school, Alpine skiing, High school, Cross-country skiing
- Rented Equipment (monthly): Propane tank
- Restrictions/Permissions: Short-term rentals not allowed
- Roofing: Elastomeric membrane
- Siding: Wood
- Size: 67.1 x 28.5 Feet
- Topography: Sloped, Flat
- View: View of the mountain, Panoramic, View of the city
- Water (access): Access, Lac Rond with membership for all citizens, Non navigable
- Window Type: Casement, French door
- Windows: Aluminum, PVC
- Heating System: Forced air, Radiant
- Heating Energy: Wood, Electricity, Propane
- Water Supply: Artesian well
- Sewage System: Biofilter, Septic tank
Taxes:
- Municipal Tax: $6,534
- School Tax: $703
- Annual Tax Amount: $7,237
Property Assessment:
- Lot Assessment: $123,500
- Building Assessment: $885,000
- Total Assessment: $1,008,500
Property Features:
- Bedrooms: 2+1
- Bathrooms: 2
- Half Bathrooms: 1
- Built in: 2016
- Irregular: Yes
- Lot Depth: 308.11 Feet
- Lot Frontage: 175.9 Feet
- Lot Size: 45161.22 Square Feet
- Zoning: RESI
- No. of Parking Spaces: 12
Rooms:
- Foyer Ground Level 3.35 m x 1.35 m 11 ft x 4.5 ft Flooring: Slate Note: Large wardrobe
- Kitchen Ground Level 4.98 m x 3.45 m 16.4 ft x 11.4 ft Flooring: Slate Note: Granite counter top and Island
- Dining Ground Level 3.68 m x 3.17 m 12.1 ft x 10.5 ft Flooring: Wood Note: Open concept, cathedral
- Other Ground Level 1.19 m x 0.94 m 3.11 ft x 3.1 ft Flooring: Slate
- Living Ground Level 5.44 m x 4.60 m 17.10 ft x 15.1 ft Flooring: Wood Note: Propane fireplace, sun, view
- Other Ground Level 6.40 m x 6.40 m 21 ft x 21 ft Flooring: Wood Note: Radiant heating
- Bedroom Ground Level 4.88 m x 4.88 m 16 ft x 16 ft Flooring: Wood Note: Murphy bed
- Powder room Ground Level 0.91 m x 1.52 m 3 ft x 5 ft Flooring: Slate
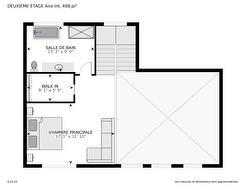
- Primary Bedroom - Irregular 2nd Level 5.13 m x 6.40 m 16.10 ft x 21 ft Flooring: Wood Note: Walk-in, ensuite bathr
- Walk-in Closet 2nd Level 2.74 m x 1.52 m 9 ft x 5 ft Flooring: Wood
- Bathroom 2nd Level 3.91 m x 2.79 m 12.10 ft x 9.2 ft Flooring: Ceramic Note: Elc. Radiant heating floor
- Family 7.04 m x 5.18 m 23.1 ft x 17 ft Flooring: Other - Solid Epoxy Note: Scandivian stove/patio dr
- Bedroom 3.66 m x 3.66 m 12 ft x 12 ft Flooring: Other - Solid Epoxy Note: Water-Glycol style
- Bathroom - Irregular 3.68 m x 2.46 m 12.1 ft x 8.1 ft Flooring: Other - Solid Epoxy Note: Shower/Washer & dryer
- Other - Irregular 2.44 m x 1.83 m 8 ft x 6 ft Flooring: Other - Solid Epoxy Note: Plus Storage
Courtesy of: Royal LePage Humania
Data provided by: Centris - 600 Ch Du Golf, Ile -Des -Soeurs, Quebec H3E 1A8
All information displayed is believed to be accurate but is not guaranteed and should be independently verified. No warranties or representations are made of any kind. Copyright© 2021 All Rights Reserved.
Additional Photos































