$488,900

House For Sale In The Towns, Regina, Saskatchewan

$488,900
  • 4

    Bedrooms

  • 4

    Baths

  • 3584.00 Square Feet

    Lot Size

Property Information:

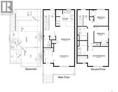
For more information, please click the "More Information" button. Welcome to "The Henry E", a 1,414 square foot, two-storey home on piles built by Glenrose Master Builder circa 2017/2018 with structural warranty protection to November 2029. It features 9-foot ceilings on the main floor; carpet, laminate, vinyl, and tile flooring, premium fixtures, stainless steel appliances, tile back splashes, and Comfortex blinds throughout. It's just steps from parks & walking trails, with schools, Costco, and other shopping only minutes away. The large front entrance and closet area leads to a bright and open dining/living room space with a park view. The corner kitchen facilitates great work flow and a breakfast bar. There is a quartz counter top, gas range, and a large fridge & pantry. The main floor has a 2-piece guest washroom. Upstairs, the spacious master bedroom has a 4-piece en-suite, a generous walk-in closet with wire shelves, and a tv-mount. There are two additional bedrooms, each with a large window. A second 4-piece bathroom and extra large washer/dryer combo with sanitizing features rounds out the top floor. The finished basement has a washer/dryer combo plus Dricore sub-floor panels, an electric fireplace, added insulation, and a suspended ceiling for extra coziness. The secondary rec/guest kitchen sports an induction stove, quartz counter top, built-in dining table/desk, and soft close cupboards. The bedroom is spacious with a large walk-in closet. The 3-piece bathroom has grab bars. Residence has central A/C and vac, a hot water circulation pump, full network wiring, and a generator pass-through. It features a "Unicorn" 20' x 40' / 4-car tandem garage with 9-foot ceilings, two overhead doors, a catch basin, and gas line RI. All grading/landscaping is completed including a vinyl fence with two gates, mature lawns, and a decorative crab apple tree in front. (id:27)

Building Features:

  • Style: Detached
  • Building Type: House
  • Architectural Style: 2 Level
  • Basement Development: Finished
  • Basement Type: Full
  • Fireplace Fuel: Electric
  • Fireplace Type: Conventional
  • Floor Space: 1414 sqft
  • Heating Type: Forced air
  • Heating Fuel: Natural gas
  • Cooling Type: Central air conditioning, Air exchanger
  • Appliances: Washer, Refrigerator, Dishwasher, Dryer, Microwave, Window Coverings, Garage door opener remote, Hood Fan, Stove

Property Features:

  • OwnershipType: Freehold
  • Property Type: Single Family
  • Bedrooms: 4
  • Bathrooms: 4
  • Built in: 2017
  • Features: Treed, Lane, Rectangular, Sump Pump
  • Fence Type: Fence
  • Floor Space (approx): 1414 Square Feet
  • Irregular: Yes
  • Landscape Features: Lawn
  • Lot Frontage: 28 Feet
  • Lot Size: 3584.00 Square Feet
  • Structure Type: Deck, Patio(s)
  • Parking Type: Detached garage, Parking Spaces
  • No. of Parking Spaces: 4

Rooms:

  • Primary Bedroom 2nd Level 12'4 x 10'11
  • Bathroom 2nd Level 8'7 x 6'1
  • Storage 2nd Level 6'1 x 4'11
  • Laundry 2nd Level 4'0 x 3'0
  • Bedroom 2nd Level 9'10 x 6'1
  • Bedroom 2nd Level 9'10 x 6'1
  • Bathroom 2nd Level 8'2 x 6'1
  • Other Basement Level 15'9 x 14'0
  • Bathroom Basement Level 15'9 x 14'0
  • Bedroom Basement Level 11'0 x 10'10
  • Storage Basement Level 7'0 x 6'2
  • Laundry Basement Level 17'8 x 6'0
  • Living Main Level 24'6 x 17'4
  • Kitchen Main Level 12'6 x 10'10
  • Bathroom Main Level 6'11 x 4'9
  • Foyer Main Level 6'8 x 6'6
  • Porch Main Level 20'0 x 5'0

Courtesy of: Easy List Realty

This listing content provided by REALTOR.ca has been licensed by REALTOR® members of The Canadian Real Estate Association.

This listing content provided by REALTOR.ca has been licensed by REALTOR® members of The Canadian Real Estate Association.