$499,900

Condo For Sale In Whitehorse North, Yukon

$499,900
  • 1

    Bedroom

  • 1

    Bath

  • $100.00

    Maintenance Fees

Property Information:

Commercial Business Opportunity with CMTx2 ZONING! Welcome to 12 Crocus Hill Lane, a beautiful chalet-style home offering 928 sq. ft. of thoughtfully designed living space in a peaceful country residential setting, surrounded by mature trees and Yukon wilderness. Located just steps from The Nordic Hot Springs, this property captures true Yukon charm with its warm character, natural surroundings, and tranquil atmosphere. This property also presents an incredible investment opportunity, with zoning that supports flexible use and strong income potential, making it ideal for those looking to blend lifestyle and revenue possibilities. Enjoy stunning views, privacy, and the unique opportunity to own in one of Yukon's most sought-after recreational areas. Don't miss the potential this property has to offer, call your Realtor today to book your private viewing! (id:27)

Building Features:

  • Style: Detached
  • Building Type: House
  • Construction Style - Attachment: Detached
  • Floor Space: 928 sqft
  • Appliances: Stove, Refrigerator, Dishwasher

Property Features:

  • OwnershipType: Condominium/Strata
  • Property Type: Single Family
  • Bedrooms: 1
  • Bathrooms: 1
  • Built in: 2022
  • Condo Fees: $100 Monthly
  • Floor Space (approx): 928 Square Feet
  • Irregular: Yes
  • Lot Size: 18295.00 Square Feet
  • Structure Type: Deck

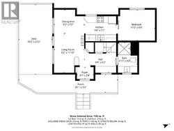
Rooms:

  • Other 5.74 m x 4.52 m
  • Living Main Level 2.79 m x 3.61 m
  • Dining Main Level 2.79 m x 2.18 m
  • Kitchen Main Level 2.95 m x 2.31 m
  • Primary Bedroom Main Level 3.43 m x 2.84 m
  • Bathroom Main Level Measurements not available
  • Porch Main Level 9.17 m x 1.68 m
  • Other Main Level 1.55 m x 1.12 m
  • Other Main Level 2.95 m x 1.88 m
  • Other Main Level 3.10 m x 6.45 m

Courtesy of: eXp Realty

This listing content provided by REALTOR.ca has been licensed by REALTOR® members of The Canadian Real Estate Association.

This listing content provided by REALTOR.ca has been licensed by REALTOR® members of The Canadian Real Estate Association.