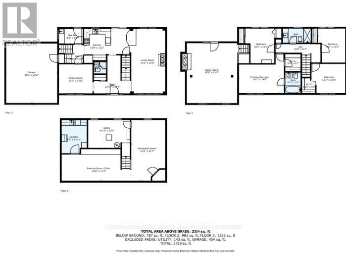
Maison À vendre à Tyandaga, Burlington, Ontario
1 399 999 $ ÉvaluationExpressMC:4 Chambres
3 Salles de bain
-
Détails
-
Carte
-
Données démographiques
-
Vue de la rue
-
Itinéraire
-
Publicité


































