Commercial À louer à Landsdale, Hamilton, Ontario
17.00 $ /moisNone Chambres
4 Salles de bain
-
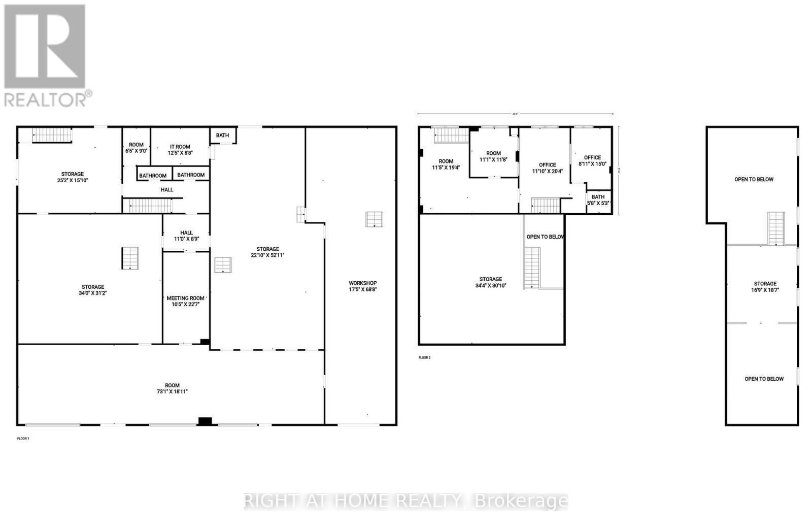
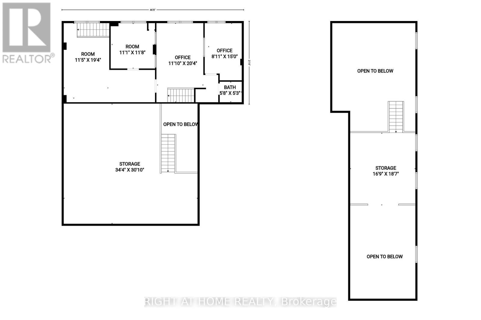
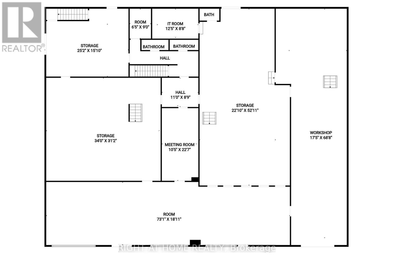
Détails
-
Carte
-
Données démographiques
-
Vue de la rue
-
Itinéraire
-
Publicité
MULTIMEDIA













