3 200 000 $

Investissement À vendre à Montgomery, Calgary, Alberta

3 200 000 $

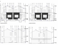
Arriving August 2026 in prime Montgomery, this Modern Courtyard 4-Plex presents a superior 8-unit investment asset comprising four 3-bedroom, 2.5-bathroom upper homes and four 1-bedroom, 1-bathroom legal basement suites complete with full kitchens and in-suite laundry. Purpose-built to qualify for CMHC MLI-Select financing through the Energy Efficiency pathway, this project offers investors favorable terms without the need for rent caps. The innovative duplex-courtyard-duplex layout delivers a quiet, low-density feel with exceptional privacy, abundant natural light, and generous outdoor separation—unique design elements that enhance livability and support higher rental income. Operational management is optimized via a separate mechanical room and full sub-metering, featuring 8 individual gas, water, and electric meters. The exterior includes thoughtfully landscaped outdoor areas designed for functionality and privacy, along with 4 dedicated parking stalls equipped with EV rough-ins. Buyers have the opportunity to customize finishes to preference prior to completion. Located steps from local schools, Shouldice Park, and the Bow River pathways, the property offers fast access to the University of Calgary, Foothills Hospital, and Market Mall, and is under 10 minutes to WinSport and the Trans-Canada Highway for easy mountain getaways, being just 1 hour to Canmore and 1 hour 15 minutes to Banff.

Particularités du bâtiment :

  • Stationnement: Oui
  • Superficie totale aménagée: 4330.00

Caractéristiques :

  • Bâti en: 2026
  • Caractéristiques intérieures: Rangement de placard, Plafonds hauts, Îlot de cuisine, Plan de masse ouvert, Garde-manger, Éclairage encastré, Entrée séparée, Espace de rangement
  • Détails de la fondation: Béton coulé
  • Matériaux de construction: Mélangé
  • Niveaux: Deux
  • Style architectural: 2 étages, En rangée
  • Superficie habitable (approx): 4330.00 Pieds carrés
  • Toiture: Bardeaux d'asphalte
  • Zonage: RCG
  • Nbre d'espaces de stationnement: 4

Gracieuseté de : Grand Realty

Données fournies par : Calgary Real Estate Board 300 Manning Rd. NE, Calgary, Alberta T2E 8K4
Nous croyons que tous les renseignements affichés sont exacts, mais nous ne le garantissons pas; les renseignements devraient être vérifiés de façon indépendante. Aucune garantie ou représentation de quelque nature que ce soit n’est offerte. Droits © 2021 Tous les droits sont réservés.