355 000 $

Duplex À vendre à Blackburne, Edmonton, Alberta

355 000 $
  • 2

    Chambres

  • 2

    Salles de bain

  • $710.84

    Frais de copropriété

A rare find! Well-kept home tucked away on a quiet street in sought-after Creekside Terrace, offering a private setting just off the ravine. The welcoming entryway features a large closet, & just down the hall is a spacious laundry room. An open-concept layout includes a bright living room w/ vaulted ceiling & generous kitchen w/ raised eating island, pantry, ample cupboard & counter space, & new appliances. The large dining nook can easily accommodate gatherings w/ family & friends & opens to a large back deck w/ gazebo & semi-private yard space. Upstairs offers a spacious primary bedroom w/ double doors, 2 mirrored closets, & full ensuite. A 2nd bedroom & another full bath w/ stand-up shower completes this level. The unspoiled basement has tall ceilings & ample light, ready for your personal development. Additional features include oversized driveway & large double garage. Condo fees include internet & use of community amenities building. Ample visitor parking. Some photos may be virtually staged.

Particularités du bâtiment :

  • Stationnement: Oui
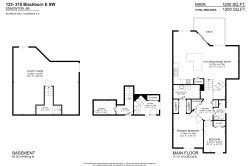
  • Surface utile: 111.51

Caractéristiques :

  • Accès routier: Pavé
  • Appareils ménagers: Alarme/système de sécurité, Lave-vaisselle encastré, Sécheuse, Commandes pour garage, Télécommande de porte de garage, Broyeur à déchets, Ventilateur de hotte pour four à micro-ondes, Réfrigérateur, Cuisinière électrique, Laveuse, Rideaux
  • Bâti en: 1999
  • Caractéristiques de commodités: Range-placards, Terrasse, Détecteurs de fumée, Stationnement - visiteurs, Plafond voûté, Fenêtres en vinyle
  • Caractéristiques de la communauté: Rangement de placard, Terrasse, Détecteurs de fumée, Stationnement - visiteurs, Plafond voûté, Fenêtres en vinyle
  • Caractéristiques du stationnement: Garage double attenant
  • Caractéristiques extérieures: Aéroport à proximité, Cul-de-sac, Golf à proximité, Aménagement paysager, Près d'un terrain de jeu, Transport public
  • Chambres : 2
  • Chauffage: =Air pulsé-1, Gaz naturel
  • Détails de la fondation: Périmètre en béton
  • État du sous-sol: Non fini
  • Frais de copropriété : 710 $ Mensuel
  • Frais de copropriété inclu: Commodités fournies avec condominium, Paysagement/déneigement, Contribution au fonds de réserve, Service télé
  • Les frais d'association comprennent: Commodités avec frais de copropriété
  • Points d'intérêt du site: Aéroport à proximité, Cul-De-Sac, Golf à proximité, Aménagement nécessitant peu d'entretien, Terrain de jeux Nearby, Transport public
  • Revêtement de plancher: Moquette, Bois franc
  • Salle(s) de bains : 2
  • Sous-sol: Pleine grandeur, Non fini
  • Style architectural: 4 niveaux à paliers
  • Superficie habitable (approx): 111.51 Mètres carrés
  • Toit: Cèdre Shakes
  • Type de bâtiment: Semi-duplex
  • Type de sous-sol: Pleine grandeur
  • Zonage: Zone 55

Gracieuseté de : RE/MAX Elite

Dernière mise à jour des données le 2026-01-30 à 17:07

The data relating to real estate for sale on this web site comes in part from the Internet Data exchange (“IDX”) program of the REALTORS® Association of Edmonton. IDX information is provided exclusively for consumers' personal, non-commercial use and may not be used for any purpose other than to identify prospective properties consumers may be interested in purchasing. The data on this website is deemed reliable but is not guaranteed accurate by the REALTORS® Association of Edmonton. Information deemed reliable but not guaranteed.

Copyright 2026 by the REALTORS® Association of Edmonton. All Rights Reserved. Data is deemed reliable but is not guaranteed accurate by the REALTORS® Association of Edmonton.