475 000 $

Maison À vendre à Duncan, Colombie-Britannique

475 000 $
  • 3

    Chambres

  • 2

    Salles de bain

  • 2

    Espaces de stationnement

Welcome to this bright and well-maintained half duplex offering 1,433 sq ft of comfortable living space in a family-friendly neighbourhood. The main level features an open-concept living and dining area filled with natural light, a convenient powder room, laundry, and a functional kitchen with a cozy breakfast area at the back of the home. Step outside to a fully fenced backyard with a deck—perfect for relaxing or entertaining.Upstairs, you’ll find a spacious primary bedroom complete with a walk-in closet, along with two additional bedrooms ideal for family, guests, or a home office. Recent updates include new flooring, fresh paint, and modern light fixtures, making this home move-in ready.Located in a great community close to ball fields, soccer fields, parks, and schools, this home is also within walking distance to shopping and restaurants at Berkey’s Corner. A fantastic opportunity for families, first-time buyers, or investors alike.Book an appointment today to view.

Caractéristiques :

  • Taxes annuelles totales: 3 284 $
  • Animaux domestiques permis: Aquariums, Oiseaux, Mammifères en cage, Chats permis, Chiens permis, Nombre limite, Taille limite
  • Appareils ménagers: Laveuse et sécheuse autoportantes
  • Autres structures: Remise
  • Bâti en: 1990
  • Caractéristiques de buanderie: Dans la propriété
  • Caractéristiques de stationnement: Allée, Sur rue
  • Caractéristiques des fenêtres: Cadres en aluminium
  • Caractéristiques du terrain: Emplacement central, Quartier familial, Terrain de golf à proximité, Activités récréatives à proximité, Commerces à proximité
  • Caractéristiques extérieures: Clôturé
  • Chambres : 3
  • Chauffage: Plinthes, Électrique
  • Condition de la propriété: Revente
  • Description du zonage: Résidentiel
  • Détails de la fondation: Périmètre en béton
  • Égouts:
  • Largeur du terrain en façade : 0 Pieds carrés
  • Matériaux de construction: Charpente en bois, Parement de vinyle
  • Propriété: Condo/strata en propriété franche
  • Refroidissement: Aucun
  • Revêtements de sol: Tapis, Mixte
  • Salle(s) de bains : 2
  • Source d'eau: Municipal
  • Sous-sol: Vide sanitaire
  • Sous-type de propriété: Semi-duplex
  • Superficie habitable (approx): 1433 Pieds carrés
  • Toiture: Bardeaux d'asphalte
  • Type de surface de route: Pavée
  • Zonage: North Cowichan R3
  • Nbre d'espaces de stationnement: 2

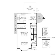
Détails des pièces :

  • Autre Rez-de-chaussé 1.55 m x 1.73 m
  • Salon Rez-de-chaussé 4.17 m x 4.44 m
  • Chambre 2e niveau 3.07 m x 4.39 m
  • Salle de bains 2e niveau
  • Autre 2e niveau 5.13 m x 3.61 m
  • Penderie (Walk-in) 2e niveau 2.31 m x 1.85 m
  • Autre Rez-de-chaussé 3.07 m x 3.05 m
  • Cuisine Rez-de-chaussé 2.72 m x 3.02 m
  • Salle de lavage Rez-de-chaussé 1.88 m x 3.25 m
  • Salle de bains Rez-de-chaussé

Gracieuseté de : RE/MAX Island Properties (DU)

Données fournies par : Vancouver Island Real Estate Board et Victoria Real Estate Board. Nous croyons que tous les renseignements affichés sont exacts, mais nous ne le garantissons pas; les renseignements devraient être vérifiés de façon indépendante.