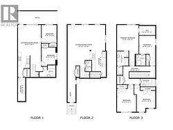
146 Summerhill Place, Kelowna, British Columbia, V1V 1T6
999 000 $No. MLS® 10370773
Le contenu de cette inscription est fourni par REALTOR.ca et a été autorisé par les membres de l'Association canadienne de l'immeuble.
Photos supplémentaires






























