1 099 000 $

Propriété À vendre à Richmond, Colombie-Britannique

1 099 000 $
  • 2

    Chambres

  • 2

    Salles de bain

  • $634.78

    Frais de copropriété

South-west facing Sub-Penthouse in the renowned Carrera by Polygon - a collection of exclusive parkside apartment residences in Central Richmond. One of the best floor plans with no wasted space. This beautiful AIR-CONDITIONED corner unit features sleek Bosch appliances, quartz countertops and distinctive cabinetry, etc. Enjoy the breathtaking unobstructed OCEAN, mountain and green view from the 17th floor. Relax in a spa-inspired ensuite featuring a spacious walk-in shower with European style thermostatic controls, floating wood cabinets & marble flooring. Steps away from Richmond Centre, Skytrain Station, Minoru Park, Restaurants, Library, Future Minoru Complex with Aquatic Centre and much more. Tops school catchments.

Particularités du bâtiment :

  • Air climatisé: Oui
  • Stationnement: Oui
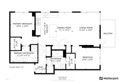
  • Surface utile: 1012 Pieds carrés

Caractéristiques :

  • Taxes annuelles totales: 3 302 $
  • Appareils ménagers: Laveuse/sécheuse, Lave-vaisselle, Réfrigérateur
  • Bâti en: 2015
  • Caractéristiques de buanderie: Dans l'unité
  • Caractéristiques de la communauté: Centre commercial à proximité
  • Caractéristiques de stationnement: Souterrain
  • Caractéristiques du terrain: Emplacement central, Cul-de-sac, Activités récréatives à proximité
  • Caractéristiques extérieures: Balcon
  • Caractéristiques intérieures: Ascenseur
  • Chambres : 2
  • Chauffage: Thermopompe
  • Commodités du syndicat: Centre d'exercice, Terrains d'entretien, Gaz, Eau chaude, Gestion
  • Frais de copropriété : 634 $
  • Niveaux: Un
  • Refroidissement: Climatisation
  • Salle(s) de bains : 2+0
  • Sous-sol: Aucun
  • Superficie habitable (approx): 1012 Pieds carrés
  • Type de structure: Multifamilial, Résidence mitoyenne

Gracieuseté de : Royal Pacific Realty (Kingsway) Ltd.

The data relating to real estate on this web site comes in part from the MLS® Reciprocity program of the Greater Vancouver REALTORS®, the Fraser Valley Real Estate Board or Chilliwack & District Real Estate Board. Real estate listings held by participating real estate firms are marked with the MLS® Reciprocity logo and detailed information about the listing includes the name of the listing agent. This representation is based in whole or part on data generated by the Greater Vancouver REALTORS®, the Fraser Valley Real Estate Board or Chilliwack & District Real Estate Board which assumes no responsibility for its accuracy. The materials contained on this page may not be reproduced without the express written consent of the Greater Vancouver REALTORS®, the Fraser Valley Real Estate Board or Chilliwack & District Real Estate Board.