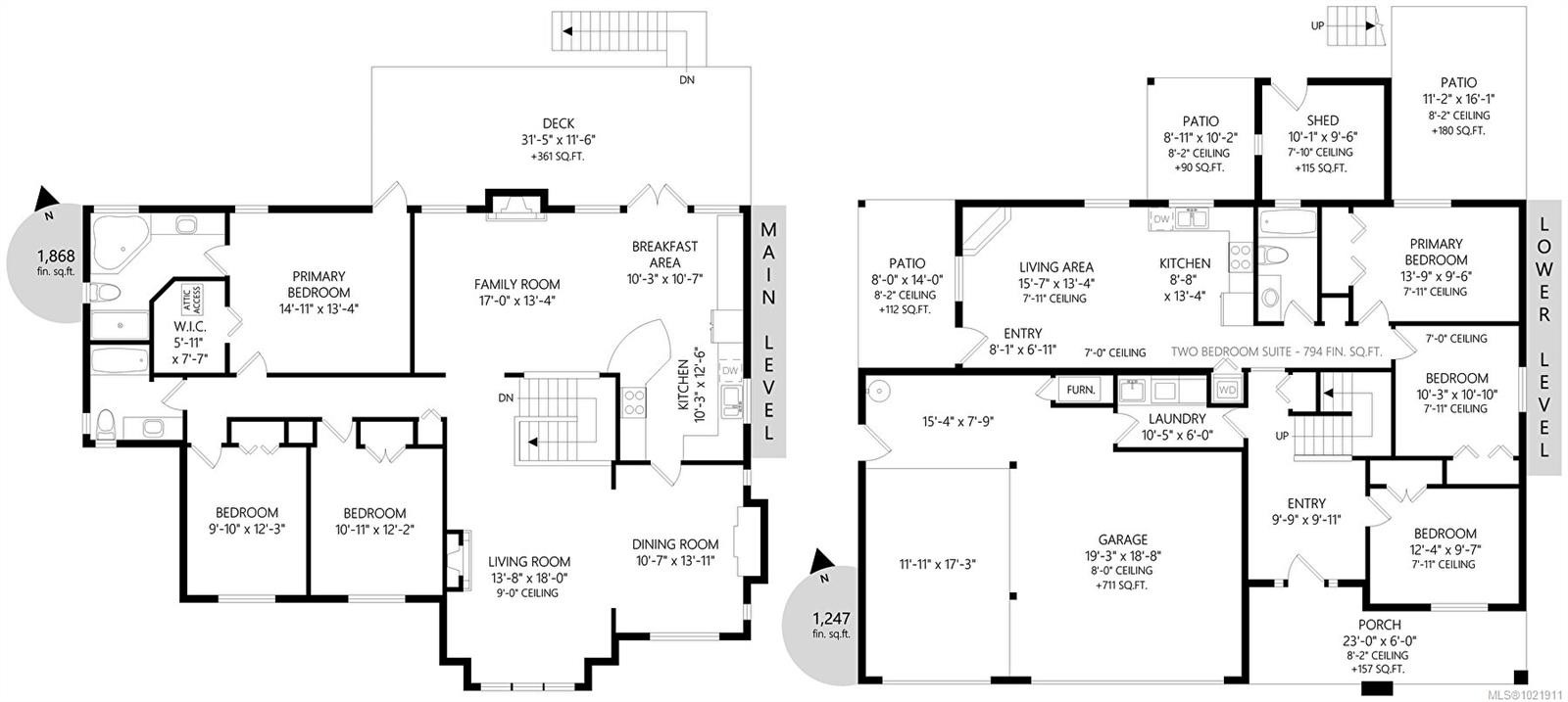
Maison À vendre à Carey, Saanich, Colombie-Britannique
1 639 980 $ ÉvaluationExpressMC:6 Chambres
3 Salles de bain
-
Détails
-
Carte
-
Données démographiques
-
Vue de la rue
-
Itinéraire
-
Publicité
MULTIMEDIA






































































