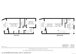
6-6110 Seabroom Rd, Sooke, BC, V9Z 0B8
474 900 $No. MLS® 1026621
Personal Real Estate Corporation
Royal LePage Coast Capital Realty - Saanich
*
Photos supplémentaires







































