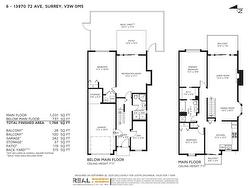
6 13970 72 AVENUE, Surrey, British Columbia, V3W 0M5
749 999 $No. MLS® R3075063
Le contenu de cette inscription est fourni par REALTOR.ca et a été autorisé par les membres de l'Association canadienne de l'immeuble.
Photos supplémentaires






































