788 000 $

Propriété À vendre à Gastown, Vancouver, Colombie-Britannique

788 000 $
  • 1

    Chambre

  • 1

    Salle de bain

  • $431.01

    Frais de copropriété

Koret Lofts - This 1906 Heritage building was converted and completely restored in 2006 into loft style live/work residences and zoned residential & commercial. Beautiful polished concrete floors, exposed brick walls, fir beams and restored double sash windows throughout this unique Gastown gem. The building offers a large courtyard patio area with 2 BBQ's for your use and enjoyment. Rentals & 2 pets allowed. Furnished rentals - 7 day minimum. Comes with 1 parking! Open house Canceled

Particularités du bâtiment :

  • Stationnement: Oui
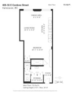
  • Surface utile: 725 Pieds carrés

Caractéristiques :

  • Taxes annuelles totales: 2 042 $
  • Appareils ménagers: Laveuse/sécheuse, Lave-vaisselle, Réfrigérateur
  • Bâti en: 2006
  • Caractéristiques de buanderie: Dans l'unité
  • Caractéristiques de la communauté: Centre commercial à proximité
  • Caractéristiques de stationnement: Garage sous bâtiment, Accès arrière
  • Caractéristiques du terrain: Emplacement central, Activités récréatives à proximité
  • Caractéristiques extérieures: Aucun espace extérieur
  • Caractéristiques favorisant l'accès: Accès pour handicapés
  • Caractéristiques intérieures: Ascenseur
  • Chambres : 1
  • Chauffage: Plinthes, Électrique
  • Commodités du syndicat: Rangement pour vélos, Concierge, Déchets, Terrains d'entretien, Gestion, Installations récréatives, Égouts
  • Frais de copropriété : 431 $
  • Salle(s) de bains : 1+0
  • Sous-sol: Aucun
  • Superficie habitable (approx): 725 Pieds carrés
  • Type de structure: Multifamilial, Résidence mitoyenne
  • Nbre d'espaces de stationnement: 1

Gracieuseté de : Macdonald Realty Westmar

The data relating to real estate on this web site comes in part from the MLS® Reciprocity program of the Greater Vancouver REALTORS®, the Fraser Valley Real Estate Board or Chilliwack & District Real Estate Board. Real estate listings held by participating real estate firms are marked with the MLS® Reciprocity logo and detailed information about the listing includes the name of the listing agent. This representation is based in whole or part on data generated by the Greater Vancouver REALTORS®, the Fraser Valley Real Estate Board or Chilliwack & District Real Estate Board which assumes no responsibility for its accuracy. The materials contained on this page may not be reproduced without the express written consent of the Greater Vancouver REALTORS®, the Fraser Valley Real Estate Board or Chilliwack & District Real Estate Board.