728 000 $

Propriété À vendre à Vancouver, Colombie-Britannique

728 000 $
  • 2

    Chambres

  • 1

    Salle de bain

  • $509

    Frais de copropriété

Marine Gateway by PCI - One of the most popular residential developments in the Marine & Cambie Corridor. Enjoy ultimate convenience in this luxurious upper unit with wonderful city and mountain view. Within walking distance to Canada Line - Marine Skytrain Station, T&T Supermarket, Shopper's Drug Mart, Movie Theatre, Banks, Shops, Restaurants and more! Catchment schools: Sir Winston Churchill Secondary & J.W. Sexsmith Elementary.

Particularités du bâtiment :

  • Stationnement: Oui
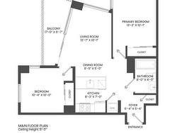
  • Surface utile: 711 Pieds carrés

Caractéristiques :

  • Taxes annuelles totales: 2 258 $
  • Appareils ménagers: Laveuse/sécheuse, Lave-vaisselle, Réfrigérateur
  • Bâti en: 2015
  • Caractéristiques de buanderie: Dans l'unité
  • Caractéristiques de la communauté: Centre commercial à proximité
  • Caractéristiques de stationnement: Souterrain
  • Caractéristiques du terrain: Emplacement central, Activités récréatives à proximité
  • Caractéristiques extérieures: Balcon
  • Caractéristiques intérieures: Ascenseur
  • Chambres : 2
  • Chauffage: Électrique
  • Commodités du syndicat: Pavillon, Déchets, Terrains d'entretien, Eau chaude, Gestion, Installations récréatives
  • Frais de copropriété : 509 $
  • Niveaux: Un
  • Salle(s) de bains : 1+0
  • Sous-sol: Aucun
  • Superficie habitable (approx): 711 Pieds carrés
  • Type de structure: Multifamilial, Résidence mitoyenne
  • Nbre d'espaces de stationnement: 1

Gracieuseté de : Sutton Group - 1st West Realty

The data relating to real estate on this web site comes in part from the MLS® Reciprocity program of the Greater Vancouver REALTORS®, the Fraser Valley Real Estate Board or Chilliwack & District Real Estate Board. Real estate listings held by participating real estate firms are marked with the MLS® Reciprocity logo and detailed information about the listing includes the name of the listing agent. This representation is based in whole or part on data generated by the Greater Vancouver REALTORS®, the Fraser Valley Real Estate Board or Chilliwack & District Real Estate Board which assumes no responsibility for its accuracy. The materials contained on this page may not be reproduced without the express written consent of the Greater Vancouver REALTORS®, the Fraser Valley Real Estate Board or Chilliwack & District Real Estate Board.