1 760 000 $

Maison À vendre à Main, Vancouver, Colombie-Britannique

1 760 000 $
  • 7

    Chambres

  • 4

    Salles de bain

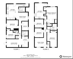
  • 3663.00 Pieds carrés

    Dimension du terrain

High ROI?? Investor Alert: This Old House is a Money Tree generating rental income. Rent Only OR Live in a suite and rent other 2 independent Suites, 8 Bedrooms, 3 KITCHENS, 4 Bathrooms. Well-Maintained. NorthShore MountainView. Excellent investment in the sought-after location, trendy Main St., John Oliver High School catchment, 15 minutes walk away from the Oakridge Center, opening in 2026. Direct BusRoute to Downtown, UBC, Skytrain to Downtown Langara College, Richmond Centre. The proximity to Oakridge Center will increase the land value when the centre opens in 2026. Decide to keep the Cash Cow or BUILD A NEW 4-6 UNIT APARTMENT. The lot is located on 2 corners, Excellent position to build a South-North-facing or West-facing building, your choice with the right architect. Do not miss it

Particularités du bâtiment :

  • Stationnement: Oui
  • Surface utile: 2117 Pieds carrés

Caractéristiques :

  • Taxes annuelles totales: 7 452 $
  • Appareils ménagers: Laveuse/sécheuse, Sécheuse, Lave-vaisselle, Réfrigérateur
  • Bâti en: 1928
  • Caractéristiques de la communauté: Centre commercial à proximité
  • Caractéristiques de stationnement: Détaché, Garage simple, Accès VR/stationnement, Accès arrière, Béton
  • Caractéristiques du terrain: Emplacement central
  • Chambres : 7
  • Chauffage: Plinthes, Air pulsé
  • Dimensions du terrain : 3663.00 Pieds carrés
  • Largeur du terrain en façade : 33 Pieds
  • Niveaux: Deux
  • Salle(s) de bains : 3+1
  • Sous-sol: Aucun
  • Superficie habitable (approx): 2117 Pieds carrés
  • Type de structure: Résidence isolée
  • Nbre d'espaces de stationnement: 1

Gracieuseté de : Interlink Realty

The data relating to real estate on this web site comes in part from the MLS® Reciprocity program of the Greater Vancouver REALTORS®, the Fraser Valley Real Estate Board or Chilliwack & District Real Estate Board. Real estate listings held by participating real estate firms are marked with the MLS® Reciprocity logo and detailed information about the listing includes the name of the listing agent. This representation is based in whole or part on data generated by the Greater Vancouver REALTORS®, the Fraser Valley Real Estate Board or Chilliwack & District Real Estate Board which assumes no responsibility for its accuracy. The materials contained on this page may not be reproduced without the express written consent of the Greater Vancouver REALTORS®, the Fraser Valley Real Estate Board or Chilliwack & District Real Estate Board.