419 999 $

Maison À vendre à Sandyville, Fredericton, Nouveau-Brunswick

419 999 $
  • 3

    Chambres

  • 2

    Salles de bain

Located in the historic community of Marysville, this sweet bungalow with semi-circle driveway sits high up on a rare ¾-acre+ city lot. A perfect home for those looking for one-level living, along with plenty of room for expansion. The main level features a bright living room with an energy-efficient ductless heat pump, a functional kitchen/dining area with patio doors leading to the deck and fenced backyard, and three good-sized bedrooms including the primary bedroom with ensuite and double closet. A full main bath and convenient laundry area complete this level.The partially finished basement offers endless possibilities for additional bedrooms, family room, playroom or home office. With a ductless heat pump and already roughed in for a bathroom, this space is waiting for your design ideas.Enjoy exceptional outdoor space with no rear neighbours, backing directly onto a city park and playground. The expansive side yard offers ample room for gardening or future garage development. Easy access to Fredericton’s extensive trail system is just outside your doorstep, with over 150km of picturesque multi-use trails. The banks of the Nashwaak River are a stone’s throw away, with canoeing, kayaking and fishing opportunities alike. Just a short walk to the local coffee shop and convenience stores makes this an ideal location for families and outdoor enthusiasts.

Particularités du bâtiment :

  • Air climatisé: Oui
  • Superficie totale aménagée: 1530 Pieds carrés
  • Surface utile: 1335 Pieds carrés

Caractéristiques :

  • Bâti en: 2013
  • Caractéristiques intérieures: Échangeur d'air, Attenant, Buanderie - Étage principal
  • Caractéristiques terrestres: Aménagement paysager, Partiellement clôturé, Terrain de jeux
  • Chambres : 3+0
  • Chauffage / climatisation: Air – sans conduit, Plinthes, Électrique, Thermopompe – sans conduit
  • Dimensions de la propriété: Entre 0,5 et 0,99 acre
  • Entrée: Circulaire, Gravier
  • Extérieur: Vinyle
  • Influences du site: Églises, Transport public, Activités récréatives à proximité, École(s) à proximité
  • Revêtements de sol: Coussin, Stratifié
  • Salle(s) de bains : 2+0
  • Superficie habitable (approx): 1335 Pieds carrés
  • Titre d’arrivée: Propriété franche
  • Toiture: Bardeaux d'asphalte
  • Eau: Municipal

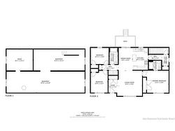
Détails des pièces :

  • Hall d'entrée Rez-de-chaussé 1.60 m x 2.41 m
  • Salon Rez-de-chaussé 4.37 m x 4.72 m
  • Chambre principale Rez-de-chaussé 4.04 m x 4.11 m
  • Salle de bain ensuite Rez-de-chaussé 2.31 m x 1.70 m
  • Chambre Rez-de-chaussé 3.15 m x 3.71 m
  • Chambre Rez-de-chaussé 3.33 m x 3.05 m
  • Salle de bains Rez-de-chaussé 1.57 m x 3.05 m
  • Salle à dîner Rez-de-chaussé 2.59 m x 4.27 m
  • Cuisine Rez-de-chaussé 2.87 m x 4.11 m
  • Autre Sous-sol 4.90 m x 3.94 m
  • Rangement Sous-sol 9.50 m x 3.94 m
  • Rangement Sous-sol 14.53 m x 3.91 m

Gracieuseté de : Keller Williams Capital Realty

Données fournies par : Greater Moncton REALTORS® du Grand Moncton 541 Boul. Ste. George, Moncton, Nouveau-Brunswick E1E 2B6
Nous croyons que tous les renseignements affichés sont exacts, mais nous ne le garantissons pas; les renseignements devraient être vérifiés de façon indépendante. Aucune garantie ou représentation de quelque nature que ce soit n’est offerte. Droits © 2021 Tous les droits sont réservés.