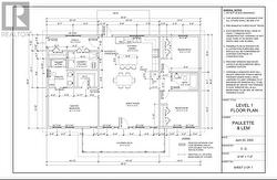
15 Old Briton Crescent, Lewisporte, Newfoundland & Labrador, A0G 3A0
389 000 $No. MLS® 1285867
Le contenu de cette inscription est fourni par REALTOR.ca et a été autorisé par les membres de l'Association canadienne de l'immeuble.
Photos supplémentaires








































