789 900 $

Maison À vendre à Augusta, Ontario

789 900 $
  • 3

    Chambres

  • 2

    Salles de bain

  • 267.9 x 109 FT ; L-shaped. House side has more depth.

    Dimension du terrain

This property is an all-inclusive package featuring a spacious 3-bedroom raised bungalow PLUS an established (auto) garage business, ready for its next owner. With the increased desire to work from home since Covid, this is a prime opportunity.The HOME: With approx 2,500 sq. ft. of finished living space, this residence has been lovingly renovated. As you step through the foyer & up a few stairs into the sunken living room, you are greeted by the warmth of the wood burning fireplace & the richness of the beautiful wood flooring. Just a couple of steps up from the living room, you will enter the open-concept kitchen- dining area. The kitchen features ample cherry cabinetry, generous counter space, & an island that transitions seamlessly into the dining area. From here, you have access to a 3-season enclosed porch - an ideal space for entertaining family & friends. Also on the main level is a spacious primary bedroom complete with a 2-piece ensuite & double closets. The additional 2 bedrooms are generous in size and offer ample closet space as well. A lovely 4-piece bathroom featuring a custom-designed shower is sure to be a standout feature.The lower level offers even more living space & newer flooring which includes a large family room, office, storage - utility areas, & laundry. From here, a convenient walk-up leads directly into the oversized two-car garage. Additional features include almost one acre of fabulous property. THE GARAGE - With an established clientele already in place, you can bring your mechanical expertise & step right in.The shop (O/A Augusta Motors) offers 6,000 sq. ft. of space & includes 3 commercial bays, 2 lifts, a compressor room, a paint room, & dedicated parts storage. Its fully equipped & ready for your business needs.Not looking to run a garage? The space is equally well-suited for boat or vehicle storage, or a variety of other uses - the possibilities are numerous. Move-in ready home! Established clientele! It's all set waiting for YOU! (id:7525)

Particularités du bâtiment :

  • Style: Maison détachée
  • Type de bâtiment: Unifamiliale
  • Air climatisé: Oui
  • Fondation: Blocs de béton
  • Foyer: Oui
  • Protection incendie: Entrée sélective, Détecteurs de fumée
  • Revêtement extérieur: Aluminium, Brique
  • Stationnement: Oui
  • Surface utile: 1500 - 2000 sqft
  • Type d'architecture: Bungalow surélevé
  • Type de construction: Isolée
  • Type de foyer: Poêle à bois
  • Type de plafond: Plafond suspendu
  • Type de sous-sol: Sous-sol complet
  • Type de chauffage: Air pulsé
  • Combustible de chauffage: Propane
  • Type de climatisation: Climatisation centrale, Échangeur d'air
  • Électroménagers: Télécommande(s) d'ouvre-porte de garage, Lave-vaisselle, Sécheuse, Hotte, Cuisinière, Machine à laver, Réfrigérateur

Caractéristiques :

  • Type de possession: Tenure franche
  • Type de propriété: Unifamiliale
  • Caractéristiques: Terrain plat, Terrain irrégulier, Sans tapis, Pompe de vidange
  • Caractéristiques de la communauté: Autobus scolaire
  • Caractéristiques du paysagement: Terrain paysager
  • Chambres : 3
  • Dimensions du terrain : 267.9 x 109 FT ; L-shaped. House side has more depth.
  • Irregular: Oui
  • Largeur du terrain en façade : 267.8 Pieds
  • Profondeur du terrain : 109 Pieds
  • Salle(s) de bains : 2
  • Salle(s) d'eau : 1
  • Superficie habitable (approx): 1500 - 2000 Pieds carrés
  • Type de services publiques: Électricité - Installé
  • Type de structure: Porche, Remise
  • Zonage: Residential with a commercial use building
  • Service d'égout: Fosse septique
  • Type de stationnement: Garage attenant, Garage
  • Nbre d'espaces de stationnement: 8

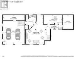
Détails des pièces :

  • Bureau Sous-sol 5.82 m x 2.81 m
  • Autre Sous-sol 3.33 m x 4.29 m
  • Autre Sous-sol 6.71 m x 1.74 m
  • Salle familiale Sous-sol 6.48 m x 6.81 m
  • Salle de lavage Sous-sol 3.25 m x 3.88 m
  • Cuisine Niveau rez-de-chaussée 4.18 m x 4.66 m
  • Salle à dîner Niveau rez-de-chaussée 3.40 m x 4.69 m
  • Salon Niveau rez-de-chaussée 7.01 m x 4.98 m
  • Salle de bains Niveau rez-de-chaussée 2.81 m x 2.96 m
  • Salle de bains Niveau rez-de-chaussée 2.70 m x 1.80 m
  • Chambre principale Niveau rez-de-chaussée 3.82 m x 4.86 m
  • Chambre Niveau rez-de-chaussée 3.31 m x 3.79 m
  • Chambre Niveau rez-de-chaussée 3.15 m x 3.79 m

Gracieuseté de : Royal LePage ProAlliance Realty

Le contenu des inscriptions fournies par REALTOR.ca a été autorisé par les membres de l'Association canadienne de l'immeuble.

  • Main Level -
  • Basement -
  • Garag -