799 900 $

Investissement À vendre à Terrace Hill, Brantford, Ontario

799 900 $

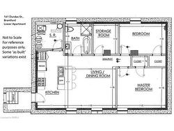
Looking for a home that can subsidise your mortgage and a solid turn key investment? This legal duplex was professionally designed and renovated in 2021 with permits. The home is centrally located, close to public transit, and currently at market rental income rates. Each apartment features a modern kitchen with stone countertops and breakfast bar, the upper unit is 3 bedrooms and has a covered porch at the front of the home and a wood deck accessing the large backyard and parking area. The lower unit, now vacant , has 2 bedrooms + den with a direct walk-up to the backyard and parking area. Both apartments have 4 piece bathrooms, large living area, in-suite laundry and come with all existing appliances including stackable washer/dryers. The backyard has ample parking, a 9 X 12 storage building and is zoned Intensification Corridor (IC), that allows for a wide variety of residential and commercial uses including the potential for adding an Accessory Dwelling Unit (ADU). Please note: photos taken prior to occupancy.

Particularités du bâtiment :

  • Stationnement: Oui
  • Surface utile: 1900 Pieds carrés

Caractéristiques :

  • Caractéristiques de la buanderie: Dans l'unité
  • Caractéristiques du lot: Terrain irrégulier, Propriété urbaine, Hôpital, Transport en commun, Écoles, Commerces à proximité
  • Caractéristiques extérieures: Compteurs d'hydroélectricité séparés
  • Caractéristiques intérieures: Appartement accessoire, Compteurs d'hydroélectricité séparés, Mise à jour de l'isolation
  • Chambres : 5
  • Chauffage: Air pulsé, Gaz naturel
  • Climatisation: Climatiseur central
  • Clôture: Pleine grandeur
  • Échelle d'acres: < 0,5
  • Égouts: Égout (municipal)
  • Largeur du terrain en façade : 37.85 Pieds
  • Matériaux de construction: Brique, Parement de vinyle
  • Source d'eau: Municipal
  • Sous-sol: Entrée séparée, Accès à l'allée piétonne direct, Pleine grandeur, Fini
  • Stationnement de la voie d'accès: Extérieur/de surface/ouvert
  • Superficie habitable (approx): 1900 Pieds carrés
  • Toiture: Bardeaux d'asphalte
  • Zonage: IC
  • Nbre d'espaces de stationnement: 4

Gracieuseté de : EXP Realty

Données fournies par : Brantford Regional Real Estate Association Inc. 106 George Street, Brantford, Ontario N3T 2Y4
Nous croyons que tous les renseignements affichés sont exacts, mais nous ne le garantissons pas; les renseignements devraient être vérifiés de façon indépendante. Aucune garantie ou représentation de quelque nature que ce soit n’est offerte. Droits © 2021 Tous les droits sont réservés.