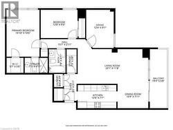
2055 UPPER MIDDLE Road Unit# 407, Burlington, Ontario, L7P 3P4
649 900 $No. MLS® 40803906
Le contenu de cette inscription est fourni par REALTOR.ca et a été autorisé par les membres de l'Association canadienne de l'immeuble.
Photos supplémentaires











































