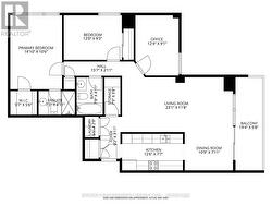
407 - 2055 UPPER MIDDLE ROAD, Burlington, Ontario, L7P 3P4
649 900 $No. MLS® W12773420
Le contenu de cette inscription est fourni par REALTOR.ca et a été autorisé par les membres de l'Association canadienne de l'immeuble.
Photos supplémentaires











































