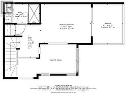
44 CARRICK TRAIL, Gravenhurst (Wood (Gravenhurst)), Ontario, P1P 0A6
528 888 $No. MLS® X12633388
-
Visites libres
- dim 21 déc 2025 13h00 - 15h00
Le contenu de cette inscription est fourni par REALTOR.ca et a été autorisé par les membres de l'Association canadienne de l'immeuble.
Photos supplémentaires










































