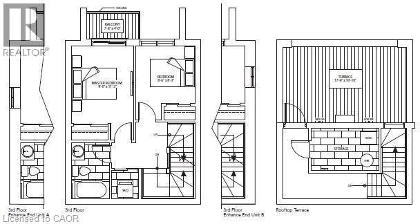
Maison en rangée À louer à Highland West, Kitchener, Ontario
2 150.00 $ /mois2 Chambres
2 Salles de bain
-
Détails
-
Carte
-
Données démographiques
-
Vue de la rue
-
Itinéraire
-
Publicité
MULTIMEDIA












