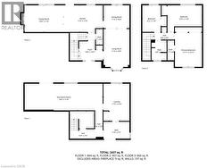
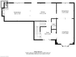
54 PATHFINDER Crescent, Kitchener, Ontario, N2P 1S6
819 900 $No. MLS® 40779480
Le contenu de cette inscription est fourni par REALTOR.ca et a été autorisé par les membres de l'Association canadienne de l'immeuble.
Photos supplémentaires
















































