LOT 30 WHITE PINE STREET, London North (North S), Ontario, N6G 3X9
1 199 900 $No. MLS® X12382710
Maison À vendre à Hamilton Road, London North (North S), Ontario
1 199 900 $
3
Chambres
3
Salles de bain
-
60 x 124 FT
Dimension du terrain
Remarques :
(id:27)
Particularités du bâtiment :
- Style: Maison détachée
- Type de bâtiment: Unifamiliale
- Air climatisé: Oui
- État du sous-sol: Non aménagé
- Fondation: Béton coulé
- Foyer: Oui
- Protection incendie: Détecteurs de fumée
- Revêtement extérieur: Pierre, Stuc
- Services:
- Stationnement: Oui
- Surface utile: 2000 - 2500 sqft
- Type de construction: Isolée
- Type de sous-sol: s.o.
- Type de chauffage: Air pulsé
- Combustible de chauffage: Gaz naturel
- Type de climatisation: Climatisation centrale
- Électroménagers: Télécommande(s) d'ouvre-porte de garage, Compteur d'eau
Caractéristiques :
- Type de possession: Tenure franche
- Type de propriété: Unifamiliale
- Caractéristiques: Terrain plat, Pompe de vidange
- Caractéristiques de la communauté: Autobus scolaire
- Chambres : 3
- Dimensions du terrain : 60 x 124 FT
- Irregular: Oui
- Largeur du terrain en façade : 60.0 Pieds
- Profondeur du terrain : 124.0 Pieds
- Salle(s) de bains : 3
- Salle(s) d'eau : 1
- Services à proximité: Parc, Transport en commun, Terrain de golf à proximité
- Superficie habitable (approx): 2000 - 2500 Pieds carrés
- Type de services publiques: Service du câble - Disponible, Service d'égout - Disponible, Électricité - Disponible
- Zonage: R1-4
- Service d'égout: Égout sanitaire
- Type de stationnement: Garage attenant, Garage
- Nbre d'espaces de stationnement: 4
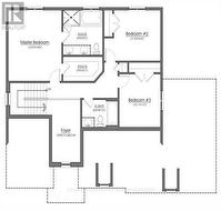
Détails des pièces :
- Bureau Niveau rez-de-chaussée 3.35 m x 2.74 m 10.99 p x 8.99 p
- Salon Niveau rez-de-chaussée 4.87 m x 4.26 m 15.98 p x 13.98 p
- Salle à dîner Niveau rez-de-chaussée 2.74 m x 4.26 m 8.99 p x 13.98 p
- Cuisine Niveau rez-de-chaussée 3.41 m x 4.26 m 11.19 p x 13.98 p
- Salle de lavage Niveau rez-de-chaussée 3.53 m x 2.43 m 11.58 p x 7.97 p
- Salle de bains Niveau rez-de-chaussée 1.85 m x 0.95 m 6.07 p x 3.12 p
- Salle de bains Niveau supérieur 2.98 m x 2.83 m 9.78 p x 9.28 p
- Salle de bains Niveau supérieur 1.76 m x 2.46 m 5.77 p x 8.07 p
- Chambre principale Niveau supérieur 3.96 m x 4.51 m 12.99 p x 14.80 p
- 2e chambre Niveau supérieur 3.47 m x 3.23 m 11.38 p x 10.60 p
- 3e chambre Niveau supérieur 3.04 m x 3.35 m 9.97 p x 10.99 p
Gracieuseté de : CENTURY 21 FIRST CANADIAN CORP
Le contenu des inscriptions fournies par REALTOR.ca a été autorisé par les membres de l'Association canadienne de l'immeuble.
Le contenu de cette inscription est fourni par REALTOR.ca et a été autorisé par les membres de l'Association canadienne de l'immeuble.
Photos supplémentaires











