LOT 31 WHITE PINE STREET, London North (North S), Ontario, N6G 3X9
1 259 900 $No. MLS® X12382711
Maison À vendre à Hamilton Road, London North (North S), Ontario
1 259 900 $
3
Chambres
3
Salles de bain
-
60 x 124 FT
Dimension du terrain
Remarques :
(id:27)
Particularités du bâtiment :
- Style: Maison détachée
- Type de bâtiment: Unifamiliale
- Air climatisé: Oui
- État du sous-sol: Non aménagé
- Fondation: Béton coulé
- Foyer: Oui
- Protection incendie: Détecteurs de fumée
- Revêtement extérieur: Brique, Panneau de fibres dur
- Services:
- Stationnement: Oui
- Surface utile: 2000 - 2500 sqft
- Type de construction: Isolée
- Type de sous-sol: s.o.
- Type de chauffage: Air pulsé
- Combustible de chauffage: Gaz naturel
- Type de climatisation: Climatisation centrale
- Électroménagers: Télécommande(s) d'ouvre-porte de garage, Compteur d'eau
Caractéristiques :
- Type de possession: Tenure franche
- Type de propriété: Unifamiliale
- Caractéristiques: Terrain plat, Pompe de vidange
- Caractéristiques de la communauté: Autobus scolaire
- Chambres : 3
- Dimensions du terrain : 60 x 124 FT
- Irregular: Oui
- Largeur du terrain en façade : 60.0 Pieds
- Profondeur du terrain : 124.0 Pieds
- Salle(s) de bains : 3
- Salle(s) d'eau : 1
- Services à proximité: Parc, Transport en commun, Terrain de golf à proximité
- Superficie habitable (approx): 2000 - 2500 Pieds carrés
- Type de services publiques: Service d'égout - Disponible, Service du câble - Disponible, Électricité - Disponible
- Zonage: R1-4
- Service d'égout: Égout sanitaire
- Type de stationnement: Garage attenant, Garage
- Nbre d'espaces de stationnement: 4
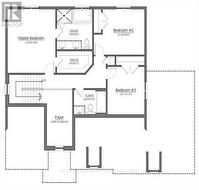
Détails des pièces :
- Bureau Niveau rez-de-chaussée 3.16 m x 2.98 m 10.37 p x 9.78 p
- Salle à dîner Niveau rez-de-chaussée 3.71 m x 2.68 m 12.17 p x 8.79 p
- Salon Niveau rez-de-chaussée 5.79 m x 5.09 m 19.00 p x 16.70 p
- Cuisine Niveau rez-de-chaussée 3.71 m x 4.87 m 12.17 p x 15.98 p
- Garde-manger Niveau rez-de-chaussée 1.55 m x 2.86 m 5.09 p x 9.38 p
- Salle de bains Niveau rez-de-chaussée 1.95 m x 1.64 m 6.40 p x 5.38 p
- Salle de bains Niveau supérieur 3.04 m x 1.39 m 9.97 p x 4.56 p
- Salle de lavage Niveau supérieur 3.01 m x 1.76 m 9.88 p x 5.77 p
- Chambre principale Niveau supérieur 4.02 m x 4.63 m 13.19 p x 15.19 p
- 2e chambre Niveau supérieur 3.38 m x 4.02 m 11.09 p x 13.19 p
- 3e chambre Niveau supérieur 3.68 m x 3.35 m 12.07 p x 10.99 p
- Salle de bains Niveau supérieur 1.76 m x 5.24 m 5.77 p x 17.19 p
Gracieuseté de : CENTURY 21 FIRST CANADIAN CORP
Le contenu des inscriptions fournies par REALTOR.ca a été autorisé par les membres de l'Association canadienne de l'immeuble.
Le contenu de cette inscription est fourni par REALTOR.ca et a été autorisé par les membres de l'Association canadienne de l'immeuble.
Photos supplémentaires














