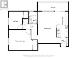
209 - 6390 HUGGINS STREET, Niagara Falls (Stamford), Ontario, L2J 1H1
379 900 $No. MLS® X12774470
Le contenu de cette inscription est fourni par REALTOR.ca et a été autorisé par les membres de l'Association canadienne de l'immeuble.
Photos supplémentaires






























