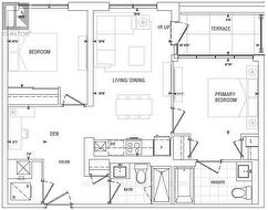
224 - 412 SILVER MAPLE ROAD, Oakville, Ontario, L6H 7X8
2 600.00 $ /moisNo. MLS® W12632942
Le contenu de cette inscription est fourni par REALTOR.ca et a été autorisé par les membres de l'Association canadienne de l'immeuble.
Photos supplémentaires


























