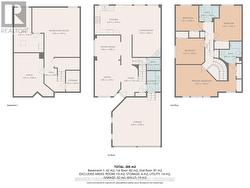
60 IPSWICH TERRACE, Ottawa, Ontario, K2K 2R3
750 000 $No. MLS® X12717842
Le contenu de cette inscription est fourni par REALTOR.ca et a été autorisé par les membres de l'Association canadienne de l'immeuble.
Photos supplémentaires






































