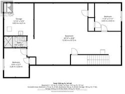
6836 JAMES CRESCENT, South Glengarry, Ontario, K0C 2E0
805 000 $No. MLS® X12805766
Le contenu de cette inscription est fourni par REALTOR.ca et a été autorisé par les membres de l'Association canadienne de l'immeuble.
Photos supplémentaires
















































