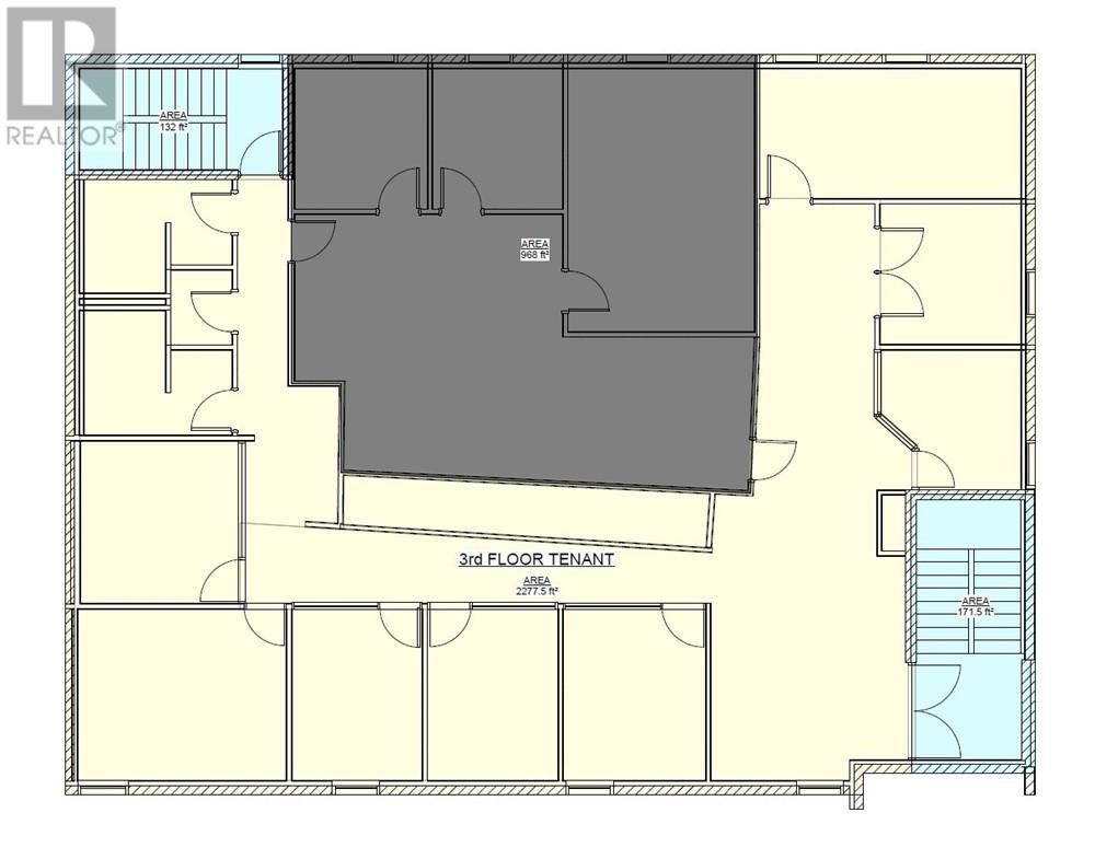
Commercial À louer à Sudbury, Ontario
17.00 $ /pi. ca.None Chambres
-
Détails
-
Carte
-
Données démographiques
-
Vue de la rue
-
Itinéraire
-
Publicité

















