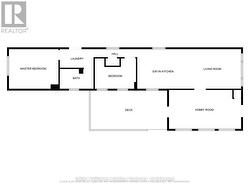
55 - 302694 DOUGLAS STREET, West Grey, Ontario, N0G 1R0
199 000 $No. MLS® X12655692
Le contenu de cette inscription est fourni par REALTOR.ca et a été autorisé par les membres de l'Association canadienne de l'immeuble.
Photos supplémentaires


























