31 Norman Drive, Charlottetown, PE, C1C 0S4
699 000 $No. MLS® 202529752
Statut:
Maison à East Royalty, Charlottetown, Île-du-Prince-Édouard
5
Chambres
3
Salles de bain
-
0.23 acre
Dimension du terrain
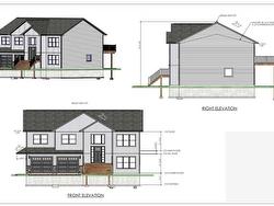
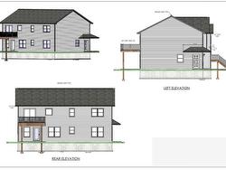
New Construction split-entry home located at 31 Norman Drive, Charlottetown, in the desirable East Royalty neighbourhood. This well-designed home offers 5 spacious bedrooms, 3 full bathrooms, and a heated double garage. The main level features a bright, open-concept layout with a modern kitchen, generous living and dining areas, and access to the back deck - perfect for entertaining or relaxing. The primary bedroom is located on the main floor and includes a walk-in closet and private ensuite bathroom. Two additional large bedrooms and a full main bathroom complete this level. The lower level offers a fully finished in-law suite with a separate entrance, featuring two additional bedrooms, a full bathroom, an open-concept kitchen, and a large family/dining area - ideal for extended family or rental potential. HST is included in the purchase price, with the rebate to be assigned to the Vendor/Builder. Please note: Property tax and assessment values are to be determined. No Property Disclosure Statement (PDS) available. All measurements are approximate and should be verified by the purchaser if deemed necessary.
Caractéristiques :
- Taxes annuelles totales: 0 $
- Caractéristiques: Échangeur d'air, Salle de bain attenante
- Caractéristiques Communautaires: Terrain de golf, Parc, Terrain de jeux, Transport en commun, Centre récréatif, Service d'autobus scolaire, Commerces à proximité
- Caractéristiques du terrain: Dégagé, Aménagement paysager
- Chambres : 5
- Clause Restrictive: FIN, INS
- Dimensions du terrain : 0.23 acre
- Documents au Dossier: Plan détaillé, Plan de l'étage
- Électroménagers Inclus: Four - Électrique, Cuisinière - Électrique, Lave-vaisselle, Sécheuse, Laveuse, Congélateur, Micro-ondes, Réfrigérateur
- Entrée de GarageéStationnement: Pavé
- Évacuation des eaux d'égout: Municipal
- Finittion Extérieure: Vinyle
- Fondation: Béton
- Matériel de location: Aucun
- Revêtement de Plancher: Vinyle
- Salle(s) de bains : 3
- Services: Câble, Électricité, Internet haute vitesse, Téléphone
- Source d'eau: Municipal
- Sous-sol: Aucun
- Structures: Terrasse
- Style du bâtiment: Entrée partagée
- Superficie habitable (approx): 2464 Pieds carrés
- Taille de la propriété: Moins de 0,5 acre
- Titre d'un bien-fonds: Propriété franche
- Toit: Bardeaux d'asphalte
- Type de Carburant: Électrique
- Type de Chauffage/Refroidissement: Thermopompe - sans conduit
- Garage: Contigu, Double
Détails des pièces :
- Chambre principale Rez-de-chaussé 20.6 x 14.8
- Salle de bain ensuite Rez-de-chaussé 6.5 x 11.8
- Chambre Rez-de-chaussé 14.4 x 11.8
- Chambre Rez-de-chaussé 14.4 x 11.8
- Salle de bains Rez-de-chaussé 10.1 x 6.10
- Salon Rez-de-chaussé 14 x 16
- Cuisine Rez-de-chaussé 16 x 9.9
- Salle à dîner Rez-de-chaussé 16 x 11.6
- Chambre Niveau inférieur 14.9 x 14
- Salon Niveau inférieur 16.6 x 9.8
- Cuisine Niveau inférieur 11.6 x 9.10
- Salle de bains Niveau inférieur 8.8 x 8.5
- Chambre Niveau inférieur 13.6 x 11.9
- Salle à dîner Niveau inférieur 14 x 7.5
Gracieuseté de : CENTURY 21 COLONIAL REALTY INC
Données fournies par : Nova Scotia Association of REALTORS® 68 Highfield Park Drive, Bureau 112, Dartmouth, Nouvelle-Écosse B3A 0E4
Nous croyons que tous les renseignements affichés sont exacts, mais nous ne le garantissons pas; les renseignements devraient être vérifiés de façon indépendante. Aucune garantie ou représentation de quelque nature que ce soit n’est offerte. Droits © 2021 Tous les droits sont réservés.
Photos supplémentaires

