849 900 $

Maison À vendre à Parc Noël-Sud, Montréal (Saint-Laurent), Québec

849 900 $
  • 3

    Chambres

  • 1+1

    Salles de bain

  • 6221.00 Pieds carrés

    Dimension du terrain

Remarques :

L'emplacement stratégique par excellence. Propriété de 3 chambres avec suite des maîtres à l'étage. Espace généreux incluant 2 bureaux et 2 salles familiales. Garage intégré. Vivez au coeur de l'action : accès rapide aux autoroutes, transports (REM/Métro/Train) et institutions d'enseignement. Une rareté sur le marché!

Polyvalence et Emplacement Stratégique
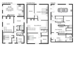
Une distribution exemplaire des pièces sur trois niveaux :

Rez-de-chaussée : Un grand hall de circulation mène aux aires de vie principales (salon, cuisine et salle à manger). Ce niveau comprend également une première chambre et un bureau fermé, offrant une flexibilité idéale pour le télétravail ou une vie de plain-pied.

À l'étage (mansardé) : Ce niveau est dédié au repos et à la famille. On y retrouve la chambre des maîtres ainsi qu'une troisième chambre, chacune dotée de son propre garde-robe de type walk-in. Une salle d'eau et une vaste salle familiale complètent cet étage.

Sous-sol : Espace hautement fonctionnel incluant une deuxième salle familiale, un second bureau, une salle de lavage indépendante, ainsi que les espaces techniques et de rangement. Accès direct au garage intégré.

Une localisation imbattable pour une mobilité simplifiée :

Située au coeur d'un secteur névralgique, cette propriété vous place à proximité immédiate de tous les services essentiels :

Transports : Accès direct aux autoroutes, au Métro, au REM, au train de banlieue et à un réseau efficace de transport en commun.

Éducation et Santé : À proximité du Cégep, des écoles primaires et secondaires, des garderies et de l'hôpital.

Loisirs : Profitez des parcs environnants et des pistes cyclables accessibles en quelques minutes.

Cette propriété offre des volumes généreux et une structure saine, représentant une occasion unique de façonner un intérieur à votre image dans un secteur d'exception.

Inclusions: À discuter

Particularités du bâtiment :

  • Style: Maison détachée
  • Fondation: Béton coulé
  • Foyer: Oui
  • Foyer-Poêle: Foyer au bois
  • Garage: Intégré, Simple largeur
  • Proximité: Autoroute, Cégep, Garderie/CPE, Hôpital, Métro, Parc, Piste cyclable, École primaire, Réseau Express Métropolitain (REM), École secondaire, Train de banlieue, Transport en commun
  • Revêtement de la toiture: Bardeaux d'asphalte
  • Salle de bains: Bidet
  • Sous-sol: 6 pieds et plus, Partiellement aménagé
  • Stationnement: Oui
  • Terrain: Clôturé
  • Topographie: Plat
  • Énergie pour le chauffage: Électricité
  • Approvisionnement en eau: Municipalité
  • Système d'égouts: Municipalité

Taxes:

  • Taxes municipales: 3 111 $
  • Taxe scolaire: 375 $
  • Taxes annuelles totales: 3 486 $

Évaluation :

  • Évaluation du terrain: 172 000 $
  • Évaluation de l'immeuble: 317 300 $
  • Évaluation totale: 489 300 $

Caractéristiques :

  • Bâti en: 1935
  • Chambres : 3
  • Dimensions du terrain : 6221.00 Pieds carrés
  • Salle(s) de bains : 1
  • Salle(s) d'eau : 1
  • Zonage: RESI
  • Nbre d'espaces de stationnement: 5

Détails des pièces :

  • Hall d'entrée Rez-de-chaussée 1.63 m x 1.63 m
  • Salon Rez-de-chaussée 3.66 m x 5.36 m
  • Salle à dîner - Irrégulier Rez-de-chaussée 4.70 m x 3.94 m
  • Cuisine Rez-de-chaussée 2.46 m x 3.91 m
  • Salle de bains - Irrégulier Rez-de-chaussée 2.49 m x 1.75 m
  • Chambre Rez-de-chaussée 2.97 m x 3.53 m
  • Bureau Rez-de-chaussée 2.34 m x 2.39 m
  • Autre Couloir Rez-de-chaussée 0.91 m x 4.27 m
  • Autre Couloir Rez-de-chaussée 3.38 m x 2.97 m
  • Salle familiale - Irrégulier 2e niveau 7.06 m x 4.83 m
  • Chambre principale - Irrégulier 2e niveau 4.62 m x 5.33 m
  • Penderie (Walk-in) 2e niveau 2.34 m x 4.72 m
  • Chambre 2e niveau 4.67 m x 3.45 m
  • Penderie (Walk-in) 2e niveau 2.26 m x 2.54 m
  • Salle d'eau 2e niveau 2.26 m x 1.96 m
  • Salle familiale - Irrégulier Sous-sol 4.95 m x 2.57 m
  • Bureau - Irrégulier Sous-sol 4.93 m x 2.29 m
  • Salle de lavage - Irrégulier Sous-sol 2.18 m x 2.49 m
  • Rangement Sous-sol 2.18 m x 1.91 m
  • Autre Local technique Sous-sol 2.69 m x 1.96 m
  • Autre Couloir Sous-sol 2.92 m x 0.89 m
  • Autre Couloir - Irrégulier Sous-sol 2.95 m x 3.20 m
  • Autre Couloir Sous-sol 1.27 m x 3.48 m

Gracieuseté de : Royal LePage Tendance

Données fournies par : Centris - 600 Ch Du Golf, Ile -Des -Soeurs, Québec H3E 1A8
Nous croyons que tous les renseignements affichés sont exacts, mais nous ne le garantissons pas; les renseignements devraient être vérifiés de façon indépendante. Aucune garantie ou représentation de quelque nature que ce soit n’est offerte. Droits© 2021 Tous les droits sont réservés.

  • Hall d'entrée/Vestibule -
  • Salon -
  • Salon -
  • Corridor -
  • Cuisine -
  • Cuisine -
  • Cuisine -
  • Salle à manger -
  • Corridor -
  • Salle de bains -
  • Bureau -
  • Chambre à coucher -
  • Chambre à coucher -
  • Salle familiale -
  • Salle familiale -
  • Chambre à coucher principale -
  • Chambre à coucher principale -
  • Salle d'eau -
  • Chambre à coucher -
  • Chambre à coucher -
  • Salle familiale -
  • Salle familiale -
  • Salle familiale -
  • Bureau -
  • Bureau -
  • Corridor -
  • Salle de lavage -
  • Rangement -
  • Garage -
  • Plan (croquis) -
  • Plan (croquis) -
  • Plan (croquis) -
  • Plan (croquis) -