263 Labine BEND, Saskatoon, Saskatchewan, S7L 5Y5
674 900 $No. MLS® SK028923
Maison À vendre à Kensington, Saskatoon, Saskatchewan
674 900 $
5
Chambres
4
Salles de bain
-
4596.00 Pieds carrés
Dimension du terrain
Remarques :
(id:27)
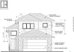
Particularités du bâtiment :
- Style: Maison détachée
- Type de bâtiment: Unifamiliale
- État du sous-sol: Aménagé
- Stationnement: Oui
- Surface utile: 1505 sqft
- Type d'architecture: Logement avec entrée à mi-étage
- Type de sous-sol: Sous-sol complet
- Type de chauffage: Plinthes chauffantes, Air pulsé
- Combustible de chauffage: Électrique, Gaz naturel
- Électroménagers: Machine à laver, Réfrigérateur, Lave-vaisselle, Sécheuse, Hotte, Cuisinière
Caractéristiques :
- Type de possession: Tenure franche
- Type de propriété: Unifamiliale
- Bâti en: 2026
- Caractéristiques: Pompe de vidange
- Caractéristiques du paysagement: Pelouse
- Chambres : 5
- Dimensions du terrain : 4596.00 Pieds carrés
- Irregular: Oui
- Salle(s) de bains : 4
- Superficie habitable (approx): 1505 Pieds carrés
- Type de structure: Terrasse
- Type de stationnement: Garage attenant, Places de stationnement
- Nbre d'espaces de stationnement: 5
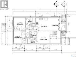
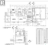
Détails des pièces :
- Chambre principale 2e niveau 16'0" x 12'4"
- Salle de bains 2e niveau xxx x xxx
- Salle familiale Sous-sol 11'6" x 11'4"
- Salle de bains Sous-sol xxx x xxx
- Autre Sous-sol xxx x xxx
- Salon Sous-sol 13'0" x 16'2"
- Cuisine Sous-sol 13'0" x 11'10"
- Chambre Sous-sol 9'11" x 9'8"
- Salle de bains Sous-sol xxx x xxx
- Chambre Sous-sol 11'4" x 9'4"
- Hall d'entrée Niveau rez-de-chaussée 12'2" x 8'0"
- Salon Niveau rez-de-chaussée 16'1" x 11'6"
- Salle à dîner Niveau rez-de-chaussée 12'8" x 12'0"
- Cuisine Niveau rez-de-chaussée 8'8" x 10'3"
- Chambre Niveau rez-de-chaussée 10'4" x 9'9"
- Salle de bains Niveau rez-de-chaussée xxx x xxx
- Chambre Niveau rez-de-chaussée 10'3" x 9'9"
- Salle de lavage Niveau rez-de-chaussée xxx x xxx
Gracieuseté de : RE/MAX Saskatoon
Le contenu des inscriptions fournies par REALTOR.ca a été autorisé par les membres de l'Association canadienne de l'immeuble.
Le contenu de cette inscription est fourni par REALTOR.ca et a été autorisé par les membres de l'Association canadienne de l'immeuble.
Photos supplémentaires


